1 В настоящей главе устанавливается условия размещения и крепления на платформах и в полувагонах (далее — вагоны) груза. Груз как неупакованный так и упакованный, в ящиках деревянных, металлических различной формы с плоской опорой.
Груз с плоской опорой есть грузовая единица, имеющая плоскую опорную поверхность (рисунок 1,а, 1,д), опорную раму (рисунок 1,б), балки или салазки (рисунок 1,ж), ложементы (рисунок 1,е), отдельные опоры (рисунок 1,в, 1,г, 1,д), исключающие возможность их перекатывания.

Рисунок 1 — Виды грузов с плоскими опорами:
а) груз с плоской опорой; б) груз на плоской раме; в) груз, закрепленный на поддоне, транспортной платформе; г) груз на опорных балках; д) груз на отдельных опорах; е) груз на ложементах; ж) груз на салазках
Несколько грузов могут быть закреплены на одной плоской опоре, а единичный груз (например, цилиндрической формы) – на специальных опорах с плоским основанием – ложементах.
Способы и прочность крепления грузов на основаниях (поддонах), транспортных платформах, ложементах должны отвечать величинам допускаемых нагрузок, установленных в главе 1 настоящих ТУ.
2 Ящик может опираться на пол вагона всей плоскостью днища, продольными или поперечными салазками со скосами (рисунок 2,а) или с подкладной доской (рисунок 2,б), а также отдельными опорами.
а) б)

Рисунок 2.
Конструкция ящика должна соответствовать нормам прочности при перевозке по железной дороге (ГОСТ 26838 «Ящики, обрешетки деревянные. Нормы механической прочности «).
Груз должен быть надежно закреплен от смещений внутри ящика.
3 Такие грузы могут быть размещены в вагоны при соблюдении следующих требований:
масса одной грузовой единицы должна быть не более 25 т, а в случаях погрузки или выгрузки в местах общего пользования железнодорожных станций – не более максимальной грузоподъемности имеющегося в них перегрузочного оборудования;
величина коэффициента запаса устойчивости груза от опрокидывания вдоль и поперек вагона должна быть не менее 1,25.Оценку устойчивости груза от опрокидывания выполняют по его габаритным размерам и размерам опорной плоскости с учетом данных таблицы 1.
суммарная масса такого груза на платформе должна быть не более 50 т, а в полувагоне – 60 т;
при размещении на платформе груз не должен препятствовать закрыванию боковых и торцовых бортов;
высота общего центра тяжести вагона с грузом должна быть не более 2300 мм от уровня головок рельсов;
наветренная поверхность вагона с грузом должна быть не более 50 м 2.
Таблица 1 Размеры груза и ширина его опорной поверхности, обеспечивающие устойчивость груза от опрокидывания в вагоне
|
Высота груза, м, не более |
0,40 |
0,60 |
0,80 |
1,00 |
1,20 |
1,40 |
1,60 |
1,80 |
|
Длина опорной плоскости груза, м, не менее |
0,50 |
0,75 |
1,00 |
1,25 |
1,50 |
1,75 |
2,00 |
2,25 |
|
Ширина опорной поверхности (опоры), м, не менее |
0,32 |
0,48 |
0,64 |
0,80 |
0,96 |
1,12 |
1,28 |
1,44 |
|
Высота груза, м, не более |
2,00 |
2,20 |
2,40 |
2,60 |
2,80 |
3,00 |
3,20 |
3,40 |
|
Длина опорной плоскости груза, м, не менее |
2,50 |
2,75 |
3,00 |
3,25 |
3,50 |
3,75 |
4,00 |
4,25 |
|
Ширина опорной поверхности (опоры), м, не менее |
1,60 |
1,76 |
1,92 |
2,08 |
2,24 |
2,40 |
2,56 |
2,72 |
Примечания: 1 Длину и ширину опорной плоскости груза принимают вдоль соответственно продольной и поперечной плоскостей симметрии вагона; опорная плоскость груза очерчивается линиями, относительно которых груз может опрокидываться вдоль и поперек вагона.
2 Центр массы груза должен располагаться посередине высоты груза, длины и ширины его опорной поверхности.
4 Деревянные ящики допускается размещать в вагонах в два-три яруса. При этом более легкие ящики размещают в верхних ярусах. Ширина размещенных в верхнем ярусе ящиков должна быть не больше ширины ящиков нижерасположенного яруса. Высота части ящика, выступающей над бортом полувагона, должна быть не более половины высоты ящика.
5 После размещения и закрепления груза на платформе ее борта должны быть закрыты и заперты на клиновые запоры.
При размещении груза в полувагоне его торцовые двери должны быть закрыты и заперты.
6 При размещении грузов на платформах нагрузка от каждой опоры груза или подкладки на пол платформы должна быть не более величин, приведенных в таблице 2. Зоны передачи нагрузок на пол платформы, указанные в таблице, приведены на рисунке 3.
Таблица 2 – Допускаемые нагрузки на пол платформы от отдельных опор груза или подкладок, т
|
Размер опоры груза в направлении длины платформы, мм * |
Допускаемые нагрузки на пол платформы от отдельных опор груза или подкладок, т, в зависимости от расстояния от продольной оси платформы до продольной оси опоры груза, мм ** | |||||||||
|
|
Менее 75 |
75…250 |
251…350 |
351…635 |
636…735 |
736…850 |
851…950 |
951…1184 |
1185…1284 |
1285…1360 |
|
| ||||||||||
|
150…300 |
0,85 |
1,0 |
0,5 |
0,3 |
0,5 |
1,0 |
0,5 |
0,3 |
0,5 |
1,0 |
|
301…500 |
1,6 |
2,0 |
0,5 |
0,3 |
0,5 |
2,0 |
0,5 |
0,3 |
0,5 |
2,0 |
|
501…750 |
2,7 |
3,3 |
1,5 |
0,9 |
1,5 |
3,3 |
1,5 |
0,9 |
1,5 |
3,3 |
|
751…1000 |
4,0 |
5,0 |
1,5 |
0,9 |
1,5 |
5,0 |
1,5 |
0,9 |
1,5 |
5,0 |
|
1001…1250 |
5,3 |
6,6 |
3,1 |
1,8 |
3,1 |
6,6 |
3,1 |
1,8 |
3,1 |
6,6 |
|
1251…1500 |
5,3 |
8,3 |
3,1 |
1,8 |
3,1 |
8,3 |
3,1 |
1,8 |
3,1 |
8,3 |
|
1501…2000 |
8,0 |
10,0 |
4,7 |
2,8 |
4,7 |
10,0 |
4,7 |
2,8 |
4,7 |
10,0 |
|
2001…2500 |
10,6 |
10,0 |
6,3 |
3,7 |
6,3 |
10,0 |
6,3 |
3,7 |
6,3 |
10,0 |
|
2501…3000 |
10,6 |
10,0 |
7,8 |
4,6 |
7,8 |
10,0 |
7,8 |
4,6 |
7,8 |
10,0 |
|
свыше 3000 |
10,6 |
10,0 |
9,4 |
5,5 |
9,4 |
10,0 |
9,4 |
5,5 |
9,4 |
10,0 |
* Ширина опоры груза поперек платформы должна быть не менее 50 мм
** В указанных диапазонах допускаемые нагрузки от одной металлической опоры шириной не менее 25 мм должны быть уменьшены вдвое.

Рисунок 3 – Зоны передачи нагрузок на настил пола платформы
Если нагрузка от опор превышает допустимые значения, то каждая грузовая единица должна устанавливаться на две поперечные подкладки, изготовленные из досок сечением не менее 50 х 150 мм и длиной, равной ширине платформы. Допускается применение подкладок, составленных по высоте из двух досок толщиной не менее 35 мм, соединенных между собой и с полом платформы не менее чем четырьмя гвоздями.
7 На платформах с дерево-металлическим настилом пола в случае возвышения металлического листа над уровнем деревянного настила пола более 5 мм груз устанавливают на подкладки, изготовленные из досок толщиной не менее 25 мм (рисунок 4,а). Каждую подкладку крепят к полу платформы не менее чем 4 гвоздями диаметром 4…5 мм.

Рисунок 4- Установка груза на дерево-металлический пол:
а) на двух подкладках; б) без подкладки
В случае, если возвышение металлического листа над плоскостью деревянного настила пола платформы не превышает 5 мм, допускается деревянные ящики и грузы на основаниях или ложементах из дерева при расположении устанавливать без подкладок (рисунок 4,б).
8 Грузы с плоской опорой от поступательных перемещений в продольном направлении закрепляют упорными брусками, распорными и упорными рамами, устанавливаемыми вплотную к основанию груза (рисунок 5), а также растяжками и обвязками.

Рисунок 5
1, 2 – упорный брусок, 3 –салазки
Допускается крепление грузов на деревянных салазках посредством установки упорных брусков под скошенную часть салазок, расположенных по продольной оси вагона (рисунок 6).

Рисунок 6
1 – брус упорный; 2 – обвязка
Упорный брусок должен быть затесан под углом скоса салазок и обеспечивать контакт с салазками на высоту не менее 50 мм. При угле скоса салазок менее 45о, груз дополнительно фиксируют по месту обвязкой из проволоки диаметром 6 мм в 2 нити.
Если салазки грузов расположены поперек вагона или груз имеет отдельные опоры, то упорные бруски должны устанавливаться вплотную к днищу ящика или к частям груза с плоской поверхностью, обеспечивая высоту поверхности контакта не менее 50 мм (рисунок 7).
а) б)


Рисунок 7 –Установка упорных брусков:
а – монолитных; б – составных: по высоте
1 – упорный брусок
Допускается на платформе составлять упорные бруски по высоте из двух брусков. Верхние бруски прикрепляют к нижним тем же количеством гвоздей, что и нижние бруски к полу платформы (см. рисунок 7б).
При невозможности закрепить бруски к полу платформы с дерево-металлическим настилом, а также в полувагонах, распорные и упорные деревянные рамы собирают с помощью строительных скоб из прутка диметром 8…10 мм или накладных досок толщиной не менее 25 мм ( рисунок 8).

Рисунок 8 – Установка упорных и распорных рам в полувагоне:
1 – упорный брус; 2 – распорный брус;3 – скоба строительная; 4 – доска накладная
9 При восприятии распорными брусками продольных нагрузок на через упорные, работающие на смятие поперек волокон (рисунок 9), количество упорных или распорных брусков должно быть не менее, указанного в таблице 3.

Рисунок 9 – Установка распорных и упорных брусков и рам для крепления грузов
в вагонах от поступательных смещений
1 – брус упорный; 2 – брус распорный
Таблица 3 – Количество упорных брусков в зависимости от их сечения и массы груза
|
Сечение бруска, мм |
Масса груза или группы грузов, т |
|||||||||
|
|
5 |
10 |
15 |
20 |
25 |
30 |
35 |
40 |
45 |
50 |
|
50х100 |
3 |
6 |
— |
— |
— |
— |
— |
— |
— |
— |
|
80х100 |
2 |
3 |
5 |
6 |
8 |
— |
— |
— |
— |
— |
|
100х100 |
2 |
3 |
4 |
5 |
6 |
7 |
8 |
— |
— |
— |
|
100х120 |
1 |
2 |
3 |
4 |
5 |
6 |
7 |
8 |
— |
— |
|
100х150 |
1 |
2 |
3 |
3 |
4 |
5 |
6 |
7 |
8 |
— |
|
120х150 |
1 |
2 |
2 |
3 |
4 |
4 |
5 |
6 |
7 |
8 |
|
150х150 |
1 |
2 |
2 |
3 |
3 |
4 |
4 |
5 |
5 |
6 |
|
160х180 |
1 |
1 |
2 |
2 |
2 |
3 |
3 |
4 |
4 |
5 |
|
200х200 |
1 |
1 |
2 |
2 |
2 |
2 |
3 |
3 |
3 |
3 |
Для других сечений брусков и массы грузов суммарная площадь контакта брусков должна быть проверена расчетом по методике, приведенной в главе 1 настоящих ТУ.
Для обеспечения необходимой площади контакта упорных и распорных брусков с грузом бруски затесывают по месту (рисунок 10,а). Допускается наращивание брусков по высоте установкой подкладок (см. рисунок 10,б) или установка промежуточных упорных брусьев 3 (см. рисунок 10,в). Промежуточный упорный брус прикрепляют к основному брусу не менее, чем четырьмя гвоздями.

Рисунок 10 — Установка упорных брусков: а) – с подрезом бруска ,
б) — на подкладке), в) — с промежуточным упорным брусом
1 – брус упорный; 2 – доска подкладная, 3 – брус упорный промежуточный
10 Крепление грузов брусками с упором в ложемент допускается только в направлении продольной оси ложемента (рисунок 11). Такое крепление допускается только в поперечном направлении.

Рисунок 11 – Рекомендуемое крепление груза на ложементе
упорными брусками
1 – брус упорный: 2 — обвязка
11 Для крепления грузов от продольных смещений в вагоне допускается использовать наклонные обвязки, которые концами закрепляется за увязочные устройства вагона, а средней частью охватывает торцовую часть груза (рисунок 12).

Рисунок 12 – Установка наклонных обвязок для крепления деревянных ящиков: 1-обвязка; 2 – брусок; 3 – скоба строительная
При использовании для крепления груза такой обвязки, в каркас ящика забивают строительные скобы из прутка диаметром 8…10 мм. Скобу снизу подкрепляют вертикально установленным бруском сечением не менее 50 х 100 мм. Брусок устанавливают в распор между скобой и полом вагона и прибивают к ящику 4 гвоздями Ø4 х 100 мм.
Между грузами в продольном направлении должны быть установлены распорные рамы. Каждый элемент распорной рамы прибивают к полу платформы не менее чем 3 гвоздями диаметром 5 мм каждый. В полувагоне элементы распорной рамы соединяют строительными скобами из прутка диаметром 8…10 мм или накладными досками сечением не менее 22 х 100 мм.
Длина распорных брусков в распорных рамах от продольных смещений в полувагонах должна быть не более 1700 мм.
12 От поперечных смещений в вагоне груз должен быть закреплен распорными брусками. Бруски устанавливают в распор между боковыми бортами вагона и грузом.
Грузы, имеющие коэффициент запаса устойчивости от опрокидывания 1,1…1,25 закрепляют обвязками из проволоки. При этом каждый груз (группу грузов) массой до 5 т закрепляют двумя поперечными обвязками из проволоки диаметром 6 мм в две нити, массой от 5…8 т — в четыре нити, массой 8…10 т – в шесть нитей каждая.
При установке грузов или упорных брусьев вплотную к торцовому борту платформыв торцовые стоечные скобы должны быть установлены короткие деревянные стойки (рисунок 13).

Рисунок 13 – Установка груза у торцового борта платформы
1 – стойка; 2 – подкладка выравнивающая; 3 – упорный брусок; 4, 5 – распорные бруски
13 Размещаемые в вагонах грузы одной или несколькими группами размещают симметрично относительно продольной плоскости симметрии вагона (рисунки 14 -23). Грузы устанавливают вплотную друг к другу.


Рисунок 14 Рисунок 15
1,2 – брусок упорный 1 – брусок упорный; 2 – брусок
распорный; 3 – стойка короткая


Рисунок 16 Рисунок 17
1 – брусок упорный; 1 – брусок упорный;
2 – брусок распорный; 2,3,4 – брусок распорный;
3 – стойка короткая; 4 – обвязка 5– стойка короткая; 6 – обвязка


Рисунок 18 Рисунок 19
1 – брусок упорный; 2 – растяжка; 1 – брусок упорный; 2 – растяжка;
3 – обвязка; 4 – стойка короткая 3 – обвязка; 4 – стойка корокая


Рисунок 20 Рисунок 21
1 – упорный брус; 2 – распорный брус; 1 — упорный брус; 2, 3 – обвязки;
3 – распорная рама


Рисунок 22 Рисунок 23
1 – брус упорный; 2 – рама распорная; 1 брус упорный; 2 – брус распорный;
3 – обвязка 3 — обвязка
14 Необходимое количество элементов крепления грузов (упорных и распорных брусков, проволочных растяжек и обвязок, гвоздей) определяют с учетом несущей способности отдельного элемента крепления.
Под несущей способностью элемента крепления понимается масса грузов, удерживаемых от смещения этим элементом крепления.
Нормативные значения несущей способности элементов крепления грузов, включая торцевые борта платформ, приведены в таблицах 4 – 11 в зависимости от суммарной массы груза в вагоне и типа крепления.
Суммарная несущая способность всех элементов крепления, закрепляющих группу грузов в вагоне, должна быть больше или равна общей массе груза в группе.
При оценке несущей способности наклонной обвязки (рисунок 12) она принимается за две растяжки.
Таблица 4 — Масса груза, удерживаемого торцовым бортом платформы, т
|
Общая масса груза в вагоне, тс |
Состояние торцового борта платформы | |
|
|
не подкреплен стойками |
подкреплен короткими деревянными стойками |
|
До 10 вкл. |
2,5 |
6,2 |
|
Свыше 10 до 30 вкл. |
2,8 |
7,1 |
|
Свыше 30 до 40 вкл. |
33 |
8,3 |
|
Свыше 40 до 50 вкл. |
4,0 |
10,0 |
|
Свыше 50 |
4,0 |
11,1 |
Примечание. Данные таблицы использовать только при размещении грузов, относящихся к настоящей главе
Таблица 5 — Масса груза, удерживаемого одним упорным бруском, прибитым к полу вагона гвоздями, т *)
|
Общая масса груза в вагоне, т |
Количество гвоздей на брусок **)Минимальная длина бруска, мм | ||||||||||
|
|
2(4) 270 |
4(8) 500 |
(14) 750 |
10(20) 1000 |
12(241250 |
15(30 1500 |
18(36) 1750 |
20(40) 2000 |
23(46 2500 |
26(52) 2500 |
28(56) 2700 |
|
до 10 вкл. ***) |
0,27 0,54 |
0,54 1,08 |
0,95 1,90 |
1,35 2,70 |
1,62 3,24 |
2,13 4,26 |
2,43 4,86 |
2,70 5,40 |
3,10 6,2 |
3,51 7,02 |
3,78 7,56 |
|
св. 10 до 30 вкл.
|
0,31 0,62 |
0,62 1,24 |
1,09 2,18 |
1,54 3,08 |
1,85 3,70 |
2,43 4,86 |
2,78 5,56 |
3,09 6,18 |
3,54 7,08 |
4,01 8,02 |
4,32 8,64 |
|
св. 30 до 40 вкл.
|
0,36 0,72 |
0,72 1,44 |
1,27 2,54 |
1,80 3,60 |
2,16 4,32 |
2,84 5,68 |
3,24 6,48 |
3,60 7,20 |
4,13 8,26 |
4,68 9,36 |
5,04 10,08 |
|
св. 40 до 50 вкл.
|
0,43 0,86 |
0,86 1,72 |
1,52 3,04 |
2,16 4,32 |
2,59 5,18 |
3,41 6,82 |
3,89 7,78 |
4,32 8,64 |
4,96 9,92 |
5,62 11,24 |
6,05 12,10 |
|
Свыше 50
|
0,48 0,96 |
0,96 1,92 |
1,69 3,38 |
2,40 4,80 |
2,88 5,76 |
3,79 7,58 |
4,32 8,64 |
4,80 9,6 |
5,51 11,00 |
6,24 12,48 |
6,72 13,44 |
*) данные таблицы относятся к гвоздям диаметром 6 мм., при использовании гвоздей диаметром 5 мм массу груза принимать на 25 % меньше
**) в скобках – количество забиваемых в брусок гвоздей в два ряда
***) в числителе для однорядной забивке гвоздей, знаменателе — двухрядной
Таблица 6 — Масса груза, т, закрепляемого одной растяжкой (общая масса груза в вагоне, т, Qгро 10)
|
Угол между растяжкой и полом вагона, град*) |
Угол между проекцией растяжки на пол вагона и продольной осью вагона | |||||||||||
|
|
30 *) |
45 *) |
60 *) | |||||||||
|
Количество нитей в растяжке при использовании проволоки диам. 6 мм | ||||||||||||
|
|
2 |
4 |
6 |
8 |
2 |
4 |
6 |
8 |
2 |
4 |
6 |
8 |
|
15 |
1.04 |
2.08 |
3.13 |
4.16 |
0.88 |
1.75 |
2.63 |
3.50 |
0.65 |
1.30 |
1.95 |
2.6 |
|
30 |
1.05 |
2.10 |
3.15 |
4.21 |
0.90 |
1.80 |
2.70 |
3.60 |
0.70 |
1.40 |
2.10 |
2.81 |
|
45 |
0.99 |
1.98 |
2.93 |
3.96 |
0.86 |
1.73 |
2.60 |
3.48 |
0.70 |
1.41 |
2.11 |
2.83 |
|
60 |
0.86 |
1.72 |
2.59 |
3.44 |
0.78 |
1.56 |
2.34 |
3.12 |
0.66 |
1.32 |
1.98 |
2.64 |
*) для промежуточных значений углов массу груза принимать, исходя из результатов линейной интерполяции
Таблица 7 — Масса груза, т, закрепляемого одной растяжкой (общая масса груза в вагоне, т, 10< Qгро ≤20)
|
Угол Между Растя- жкой и полом вагона град*) |
Угол между проекцией растяжки на пол вагона и продольной осью вагона | |||||||||||
|
30 *) |
45 *) |
60 *) | ||||||||||
|
Количество нитей в растяжке при использовании проволоки диам. 6 мм | ||||||||||||
|
2 |
4 |
6 |
8 |
2 |
4 |
6 |
8 |
2 |
4 |
6 |
8 | |
|
15 |
1.19 |
2.37 |
3.57 |
4.76 |
1.08 |
2.00 |
3.00 |
4.00 |
0.74 |
1.49 |
2.23 |
2.97 |
|
30 |
1.20 |
2.40 |
3.60 |
4.8 |
1.03 |
2.06 |
3.09 |
4.11 |
0.80 |
1.60 |
2.40 |
3.21 |
|
45 |
1.13 |
2.23 |
3.39 |
4.53 |
0.99 |
1.98 |
2.97 |
3.97 |
0.80 |
1.61 |
2.41 |
3.23 |
|
60 |
0.99 |
1.98 |
2.97 |
3.95 |
0.89 |
1.78 |
2.66 |
3.56 |
0.76 |
1.52 |
2.27 |
3.04 |
*) для промежуточных значений углов массу груза принимать, исходя из результатов линейной интерполяции
Таблица 8- Масса груза, т, закрепляемого одной растяжкой (общая масса груза в вагоне, т, 20 < Qгро ≤30)
|
Угол Между Растя- жкой и полом вагона, град* |
Угол между проекцией растяжки на пол вагона и продольной осью вагона | |||||||||||
|
30 *) |
45 *) |
60 *) | ||||||||||
|
Количество нитей в растяжке при использовании проволоки диам. 6 мм | ||||||||||||
|
2 |
4 |
6 |
8 |
2 |
4 |
6 |
8 |
2 |
4 |
6 |
8 | |
|
15 |
1.38 |
2.77 |
4.17 |
5.55 |
1.17 |
2.33 |
3.60 |
4.67 |
0.87 |
1.73 |
2.60 |
3.47 |
|
30 |
1.40 |
2.88 |
4.20 |
5.61 |
1.20 |
2.40 |
3.60 |
4.80 |
0.93 |
1.87 |
2.80 |
3.75 |
|
45 |
1.32 |
2.63 |
3.90 |
5.28 |
1.15 |
2.30 |
3.47 |
4.63 |
0.93 |
1.88 |
2.82 |
3.77 |
|
60 |
1.15 |
2.30 |
3.45 |
4.60 |
1.03 |
2.06 |
3.10 |
4.13 |
0.88 |
1.76 |
2.65 |
3.53 |
*) для промежуточных значений углов массу груза принимать, исходя из результатов линейной интерполяции
Таблица 9 — Масса груза, т, закрепляемого одной растяжкой (общая масса груза в вагоне, т 30 < Qгро ≤40)
|
Угол Между Растя- жкой и полом вагона, град* |
Угол между проекцией растяжки на пол вагона и продольной осью вагона | |||||||||||
|
30 *) |
45 *) |
60 *) | ||||||||||
|
Количество нитей в растяжке при использовании проволоки диам. 6 мм
| ||||||||||||
|
2 |
4 |
6 |
8 |
2 |
4 |
6 |
8 |
2 |
4 |
6 |
8 | |
|
15 |
1.66 |
3.32 |
5.00 |
6.66 |
1.40 |
2.80 |
4.20 |
5.60 |
1.04 |
2.08 |
3.12 |
4.16 |
|
30 |
1.68 |
3.36 |
5.04 |
6.74 |
1.44 |
2.88 |
4.32 |
5.76 |
1.12 |
2.24 |
3.36 |
4.50 |
|
45 |
1.58 |
3.16 |
4.68 |
6.34 |
1.38 |
2.76 |
4.26 |
5.56 |
1.12 |
2.26 |
3.38 |
4.52 |
|
60 |
1.38 |
2.76 |
4.14 |
5.52 |
1.24 |
2.48 |
3.72 |
4.96 |
1.06 |
2.12 |
3.18 |
4.24 |
*) для промежуточных значений углов массу груза принимать, исходя из результатов линейной интерполяции
Таблица 10 — Масса груза, т, закрепляемого одной растяжкой (общая масса груза в вагоне, т
40 < Qгро 50)
|
Угол Между Растя- жкой и полом вагона, град* |
Угол между проекцией растяжки на пол вагона и продольной осью вагона | |||||||||||
|
30 *) |
45 *) |
60 *) | ||||||||||
|
Количество нитей в растяжке при использовании проволоки диам. 6 мм
| ||||||||||||
|
2 |
4 |
6 |
8 |
2 |
4 |
6 |
8 |
2 |
4 |
6 |
8 | |
|
15 |
2.07 |
4.14 |
6.24 |
8.28 |
1.75 |
3.49 |
5.24 |
7.00 |
1.30 |
2.60 |
3.90 |
5.20 |
|
30 |
2.09 |
4.18 |
6.27 |
8.36 |
1.80 |
3.60 |
5.40 |
7.20 |
1.41 |
2.82 |
4.23 |
5.64 |
|
45 |
1.97 |
3.94 |
5.91 |
7.88 |
1.72 |
3.44 |
5.16 |
6.88 |
1.41 |
2.82 |
4.24 |
5.64 |
|
60 |
1.72 |
3.44 |
5.16 |
6.88 |
1.55 |
3.10 |
4.65 |
6.20 |
1.32 |
2.64 |
3.96 |
5.28 |
*) для промежуточных значений углов массу груза принимать, исходя из результатов линейной интерполяции
Таблица 11 — Масса груза, т, закрепляемого одной проволочной обвязкой
|
|
45 |
1.88 |
2.14 |
2.50 |
3.00 |
3.33 |
|
6 |
60 |
2.30 |
2.63 |
3.07 |
3.68 |
4.09 |
|
|
75 |
2.56 |
2.93 |
3.42 |
4.10 |
4.56 |
|
|
90 |
2.65 |
3.03 |
3.53 |
4.24 |
4.71 |
*) для промежуточных значений углов массу груза принимать, исходя из результатов линейной интерполяции
15 Груз с плоской опорой, близкие по значениям габаритных размеров и массы, может устанавливаться в вагоне в 2-3 яруса ( рисунки 22, 23).
Такие грузы размещают одной или двумя группами с передачей нагрузки на торцевой порожек через упорный брусок или распорную раму. В верхнем ярусе такие грузы размещают в один или два ряда по ширине вагона.
Каждый штабель груза крепят обвязками. Каждый отдельно стоящий груз верхнего яруса должен крепиться двумя обвязками.
16 Допускается разновысокая уплотненная погрузка из крупных, средних и таких грузов с передачей продольных нагрузок на торцевой порожек вагона ( рисунок 23).
При этом у торцевых дверей размещают более высокие и тяжелые грузы. У торцевого порожка укладывают упорные бруски на всю ширину вагона.
В остальной части вагона грузы размещают с заполнением всей ширины кузова вагона, чередуя более высокие грузы со штабелями из грузов меньших размеров, укладывая их вперевязку.
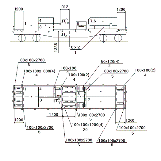
17 Пример разработки эскиза размещения и крепления грузов, погруженных в соответствии настоящей главы.
В качестве примера рассматривается погрузка восьми грузовых единиц, состоящие из пяти единиц груза и трех единицы оборудования на рамах (рисунок 24). Характеристика грузовых мест приведена на рисунке и в таблице 12.
Вначале проверяют соответствие предъявленных грузов требованиям, изложенным в пункте 3. настоящей главы.
По устойчивости от опрокидывания этим требованиям не удовлетворяют грузы позиций 2 и 5. Для перевозки этих грузов необходимо разработать чертеж погрузки и крепления.
Общая масса оставшихся грузов составляет 15,5 тонн.
При погрузке грузов одной группой длина группы составит 9500 мм, поэтому длина распорных брусков, которыми группа грузов будет упираться в торцовый борт платформы, составит: (13300-9500)/2, т.е. 1900 мм. Распорные бруски такой длины устанавливать нерационально, грузы необходимо разделить на две группы.
Расчетная схема варианта погрузки с разделением грузов на две группы представлена на рисунке 24.
Вначале определяют положение общего центра массы груза ЦМ огр относительно продольной и поперечной осей платформы и сравнивают его с допустимыми значениями, приведенными в главе 1 настоящих ТУ.
Продольное смещение общего центра массы грузов:

Поперечное смещение ЦМ огр определяем по формуле:

Рассчитанные смещения общего центра массы груза находятся в пределах допустимых значений (см. главу 1настоящих ТУ).
Таблица 12
|
Номер груза |
Тип грузо-вого места |
Масса гру-за, т |
Габаритные размеры груза, мм |
Координаты центра тяжести груза, мм, по |
Коэффициент устойчивости груза в направлении | |||||
|
|
|
|
длина |
Ширина |
Высота |
длине l о пр |
ширине bоп |
высоте hцт |
продольном
|
поперечном
|
|
1 2 3 4 5 6
7
8
|
Ящик Ящик Ящик Ящик Ящик Оборудование на раме Оборудование на раме Оборудование на транспортной платформе |
4,50 2,40 2,20 2,70 4,80 2,30
2,30
1,50
|
1800 2500 2900 2100 1600 3300
3300
1700 |
2600 1000 1200 1400 1600 1300
1300
1700 |
1500 1800 1000 1600 2000 1850
1850
1200 |
900 1250 1450 1050 800 1500
1500
850 |
1300 500 600 700 800 650
650
850 |
750 950 500 800 1000 1000
1000
800 |
1.20 1.39 2.90 1.31 0.80 1.50
1.50
1.06 |
3.40 1.04 2.40 1.70 1.60 1.30
1.30
2.10 |

Рисунок 24
Далее определяют положение общего центра массы платформы с грузом ЦТ о по высоте над уровнем верха головок рельсов (УГР):

Высота общего центра массы платформы с грузом не превышает допустимого значения 2300 мм (см. подпункт 5.5 настоящей главы).
Боковая наветренная площадь грузов 1, 4, 8, 6 за вычетом высоты бокового борта платформы составляет:

С учетом боковой наветренной площади платформы 13 м2 суммарная наветренная площадь вагона с грузом составляет 22,9 м2, что меньше допускаемой 50 м2 (см. пункт 3 настоящей главы).
Крепление грузов в продольном направлении целесообразно выполнить с использованием несущей способности торцовых бортов платформы. Согласно пункта 12 настоящей главы в этом случае в торцовые стоечные скобы устанавливают короткие деревянные стойки. Несущая способность торцового борта при общей массе груза на платформе 15,5 т принимается равной 7,1 т (см. таблицу 4).
Для крепления грузов используются распорные бруски сечением 100 х 100 мм. Количество брусков для передачи продольной нагрузки на торцовый борт платформы определяется, исходя из условия прочности упорных брусков, укладываемых у крайних грузов группы, на смятие. Согласно данных таблицы 3 для крепления группы грузов 1, 3, 4 позиций общей массой 9,4 т с каждой стороны необходимо установить не менее 3-х брусков, для группы из грузов 6, 7, 8 позиций общей массой 6,1 т — не менее 2-х брусков. Так как погрузка может производиться на платформы с дерево-металлическим настилом пола (металлический настил имеет ширину до 1200 мм и расположен по оси платформы) упорные бруски необходимо располагать по обе стороны металлического листа. Из условия симметричности для закрепления группы грузов 1, 3, 4 позиций применяются четыре бруска.
Так как торцовый борт платформы удерживает только 7,1 т массы грузов, дополнительное крепление грузов осуществляют за счет забивки гвоздей в бруски упорно-распорной конструкции между торцовыми бортом и группой грузов. Необходимое количество гвоздей определяем по таблице 6 на несущую способность 9,4 – 7,1 = 2,3 т, в расчете на один распорный брусок – 2,3/4=0,575 т. Такой несущей способности отвечает брусок, прибитый к полу платформы 4 гвоздями (см. вторую строку, второй столбец таблицы 5).
Распорные бруски в середине платформы должны обладать несущей способностью, отвечающей группе наиболее тяжелых грузов, т.е. 9,4 т. Несущая способность одного бруска должна составлять не менее 9,4/4=2,35 т. Такой несущей способности отвечает брусок, прибитый к полу платформы 20 гвоздями (см. часть таблицы 5 для случая двухрядной забивки гвоздей четвертый столбец, вторая строка). Гвозди должны забиваться в два ряда, т.к. длина распорного бруска не превышает 1200 мм.
Распорная конструкция в правой стороне платформы выполняет только функцию передачи продольной нагрузки на торцовый борт платформы, Т.к. несущая способность торцового борта 7,1 т больше суммарной массы группы из грузов 6, 7, 8, позиций следовательно, бруски распорной конструкции только фиксируются на полу вагона, при этом каждый брусок прибивают не менее, чем 4 гвоздями.
В поперечном направлении закрепляем только груз 8 позиции. Согласно общих требований с каждой стороны груза устанавливаем в распор по два распорных бруска, каждый брусок прибивается к полу вагона 2 позиция гвоздями.
Груз 8 необходимо закрепить фиксирующей обвязкой, т.к. его коэффициент запаса устойчивости от опрокидывания менее 1,25. Обвязка выполняется из проволоки диаметром 6 мм в две нити.
Разработанный эскиз погрузки и крепления грузов представлен на рисунке 25.
Пример оформления эскиза погрузки грузов по настоящей главе в соответствии с требованиями главы 1 настоящих ТУ (приложение № 5) приведен на рисунке 26.

Рисунок 25
Рисунок 26
18 Положения настоящей главы не распространяются на условия размещения и крепления в вагонах металлопродукции (например, продукции черной металлургии в виде полуфабрикатов — блюмсов, слябов, — отливок, сортового и листового проката, труб, проволоки), железобетонных изделий, техники на гусеничном и колесном ходу, универсальных и специализированных контейнеров.


