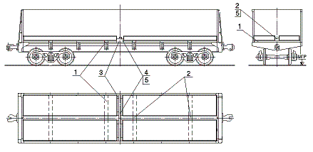
7.6 Слябы шириной от 1250 до 1350 мм включительно, толщиной 250 мм и длиной от 5500 до 5900 мм включительно размещают в полувагоне в количестве 4 штук (рисунок 94) горизонтально двумя продольными рядами ряда по ширине полувагона симметрично относительно его продольной и поперечной плоскостей.

Рисунок 94
1 – подкладка; 2, 3 — распорный брусок; 4 – соединительная планка;
5 – гвоздь
Слябы устанавливают на подкладки 1 размером 40х100х2850 мм вплотную к боковым стенам и торцам полувагона.
От поперечных смещений слябы закрепляют распорными брусками 2 сечением не менее 80х100 мм и длиной по месту, каждый из которых устанавливают на подкладки 1 враспор между слябами. Каждый распорный брусок 2 закрепляют к подкладкам 1 двумя гвоздями 5.
От продольного смещения каждый сляб закрепляют двумя распорными брусками 3 сечением не менее 100х160 мм и длиной по месту, которые скрепляют между собой соединительной планкой 4 размером 40х100х2850 мм. Соединительную планку 4 закрепляют к распорным брускам 3 гвоздями 5 К6х120– по два в каждое соединение.
7.7 Слябы шириной от 1350 до 1500 мм включительно, толщиной от 200 до 250 мм включительно и длиной от 7000 до 8000 мм включительно размещают в полувагоне в количестве 3 штук (рисунок 95) симметрично относительно продольной плоскости симметрии полувагона. Один сляб размещают горизонтально вплотную к торцовому бруску 1 размером 100х150х2850 мм на подкладки 2 размером 25х100х2850 мм.

Рисунок 95
1, 7 –упорный брусок; 2,4 –подкладка; 3, 6 – распорный брусок;
5 – соединительная планка; 8 – гвоздь
В противоположном торце полувагона устанавливают распорную раму, состоящую из упорного бруска 7 сечением не менее 100х150 мм и длиной 2850 мм и двух распорных брусков 6 сечением не менее 150х150 мм и длиной по месту. Упорный брусок 7 и распорные бруски 6 скрепляют между собой между собой строительными скобами из прутка диаметром от 6 до 8 мм включительно или гвоздями длиной 150 мм, которые забивают под углом 450.Распорные бруски 6 дополнительно скрепляют соединительными планками 5 размером 25х50х2850 мм гвоздями 8 К4х50– по два в каждое соединение.
Два других сляба устанавливают вплотную к распорной раме наклонно с опорой на горизонтальный сляб, подкладку 4 размером 50х100х2850 мм и упорный брусок 3 сечением не менее 25х100 мм и длиной по месту.
От поперечных смещений горизонтально установленный сляб закрепляют распорными брусками 3, каждый из которых закрепляют к подкладкам 2 тремя гвоздями 8.
7.8 Слябы шириной от 1450 до 1550 мм включительно, толщиной 200 мм и длиной от 8500 до 12000 мм включительно размещают в полувагоне в количестве 3 штук (рисунок 96) симметрично относительно поперечной плоскости симметрии полувагона. Первый сляб устанавливают горизонтально в середине полувагона симметрично относительно продольной и поперечной плоскостей симметрии полувагона на подкладки 4 размером 40х100х2850 мм, второй сляб устанавливают горизонтально со смещением к одной из боковых стен полувагона, третий – наклонно к противоположной боковой стене полувагона с опорой на два горизонтально размещенных сляба, вплотную к упорному бруску 5 сечением не менее 80х100 мм и длиной 300 мм. Упорные бруски 5 закрепляют к подкладкам 4 гвоздями 7 К6х110 мм по два в каждое соединение.

Рисунок 96
1,5 – упорный брусок; 2 – распорный брусок; 3 – соединительная планка; 4 – подкладка;
6, 7 – гвоздь
Для предотвращения продольных смещений в торцовых частях полувагона устанавливают распорные рамы, состоящие из упорных брусков 1 размером 80х100х2850 мм и четырех распорных брусков 2 сечением 80х100 мм и длиной по месту.
Упорные бруски 1 и распорные бруски 2 скрепляют между собой строительными скобами из прутка диаметром от 6 до 8 мм включительно или гвоздями длиной 150 мм, которые забивают под углом 450. Соединительные планки 3 размером 25х100х2850 мм закрепляют к распорным брускам 2 гвоздями 6 К5х80 мм – по два в каждое соединение. Допускается использовать распорные бруски 3 составные по высоте.
При погрузке-выгрузке слябов магнитными грузозахватными устройствами допускается подкладки 4 и упорные бруски 5 не устанавливать.
При погрузке слябов длиной от 11900 до 12000мм включительно бруски 2 не устанавливаются.
7.9 Слябы шириной от 1515 до 1550 мм включительно, толщиной от 200 до 250 мм включительно и длиной от 7000 до 8200 мм включительно размещают в полувагоне в количестве 3 штук (рисунок 97) симметрично относительно продольной плоскости симметрии полувагона. Первый сляб размещают горизонтально в середине полувагона симметрично относительно его продольной и поперечной плоскостей симметрии на две подкладки 1 размером 40х100х285 мм, второй сляб размещают на первый сляб горизонтально со смещением к торцу полувагона вплотную к торцовому щиту 2 из брусков 50х100х600 мм и досок 40х200х2850 мм и опорой на подкладку 3 размером 160х300х2850 мм. Подкладку 3 допускается изготавливать составной по высоте и ширине. Третий сляб размещают наклонно к противоположному торцу полувагона вплотную к бруску 4 размером 80х100х2850 мм с опорой на подкладку 1, прокладку 5 размером 50х100х2850 мм и торцы горизонтально размещенных слябов. От поперечных смещений слябы закрепляют распорными брусками 6 сечением не менее 50х100 мм и длиной по месту, каждый из которых закрепляют тремя гвоздями 8 К4х90 мм к подкладкам 1, 3 и прокладке 5 с обеих сторон сляба.

Рисунок 97
1,3 – подкладка; 2 – торцовый щит; 4, 6 – брусок; 5 – прокладка; 7 – доска; 8 – гвоздь
Для предотвращения смещений прокладку 5 скрепляют с подкладкой 1 доской 7 сечением 40х100 мм длиной по месту гвоздями 8 по три в каждое соединение. Подкладки 1 и упорные бруски 6 в торцовой части наклонного сляба также скрепляют доской 7, которую закрепляют гвоздями 8 – по три в каждое соединение.
7.10 Слябы шириной от 1550 до 1850 мм включительно и толщиной от 200 до 250 мм включительно размещают в полувагонах:
— длиной от 5100 до 5900 мм включительно — в количестве 3 штук;
— длиной от 7000 до 7500 мм включительно, от 8500 до 12000 мм включительно — в количестве 2 штук.
7.10.1 Слябы длиной от 5100 до 5900 мм включительно размещают (рисунок 98) вдоль хребтовой балки симметрично относительно продольной плоскости симметрии полувагона. В середине полувагона горизонтально устанавливают сляб на подкладки 2 размером 40х100х2850 мм, уложенные над промежуточными балками полувагона. В торцах полувагона размещают упорные бруски 1 размером 80х100х2850 мм. Два других сляба размещают вплотную к упорному бруску 1 наклонно, с опорой на торец горизонтального сляба и прокладки 5 размером 80х100х2850 мм.

Рисунок 98
1 –упорный брусок; 2 – подкладка; 3 – распорный брусок; 4 – гвоздь;
5 – прокладка; 6 – соединительная доска
От поперечных смещений горизонтальный сляб закрепляют распорными брусками 3 сечением не менее 40х100 мм и длиной по месту, каждый из которых закрепляют к подкладкам 2 тремя гвоздями 4 К5х80 мм. Наклонно установленные слябы закрепляют от поперечных смещений распорными брусками 3, которые закрепляют к торцовым упорным брускам 1 и прокладкам 5, каждый тремя гвоздями 4.
Для предотвращения смещения прокладок 5 к распорным брускам 3, размещенных на подкладках 2 и прокладках 5, закрепляют соединительную доску 6 сечением не менее 40х100 мм и длиной по месту гвоздями 4 — по три в каждое соединение. Допускается заменять соединительную доску 6 увязкой из проволоки диаметром 6 мм в две нити.
7.10.2 Слябы длиной от 7000 до 7500 мм включительно размещают (рисунок 99) вдоль хребтовой балки симметрично относительно продольной плоскости симметрии полувагона. Один сляб размещают горизонтально вплотную к упорному бруску 1 размером 80х100хх2850 мм на подкладки 2 размером 40х200х2850 мм. Второй сляб устанавливают вплотную к противоположному упорному бруску 1, наклонно с опорой на торец горизонтального сляба, подкладку 2 и прокладку 4 размером 80х100х2850 мм.

Рисунок 99
1 –упорный брусок; 2 – подкладка; 3 – распорный брусок; 4 – прокладка;
5 – доска; 6 – гвоздь
От поперечных смещений слябы закрепляют распорными брусками 3 сечением 50х200 мм и длиной по месту, каждый из которых закрепляют к подкладкам 2 и прокладке 4 тремя гвоздями 6 К5х80.
Для предотвращения смещений прокладки 4 ее соединяют с подкладкой 2 доской 5 сечением 40х100 мм и длиной по месту. Доску закрепляют двумя гвоздями 6 в каждое соединение.
7.10.3 Слябы длиной от 8500 до 12000 мм включительно размещают в полувагоне в количестве двух штук (рисунок 100) симметрично относительно поперечной плоскости симметрии полувагона.

Рисунок 100
1 — сляб, размещенный горизонтально; 2 — сляб, размещенный наклонно;
3 –упорный брусок; 4 – распорный брусок; 5 – соединительная планка
Первый сляб 1 размещают горизонтально со смещением к одной из боковых стен полувагона, второй сляб 2 – наклонно к противоположной боковой стене полувагона с опорой на первый сляб.
Для предотвращения продольных смещений в торцовых частях полувагона устанавливают распорные рамы, состоящие из упорных брусков 3 размером 100х120х2850 мм и четырех распорных брусков 4 сечением не менее 100х120 мм и длиной по месту.
Упорные и распорные бруски скрепляют между собой строительными скобами из прутка диаметром от 6 до 8 мм включительно или гвоздями длиной 150 мм, которые забивают под углом 450. Соединительные планки 5, имеющие размер 25х100х2850 мм закрепляют к распорным брускам 4 гвоздями длиной 80 мм – по два в каждое соединение. Допускается использовать распорные бруски 3 составные по высоте.
При погрузке слябов длиной от 11900 до 12000 мм включительно бруски 2 не устанавливаются.
7.11. Слябы на платформах, переоборудованных по черт.№ 77308 ОАО «НЛМК», размещают симметрично относительно продольной и поперечной плоскостей симметрии платформы.
От продольного смещения слябы с обеих сторон закрепляют упорными балками, которые вставляют в специальные проемы на продольных балках оборудования платформ. Суммарные по длине зазоры между слябами и упорными балками более 200 мм заполняют брусками или обрезками досок, которые закрепляют к упорным балкам проволокой диаметром от 4 до 6 мм включительно в две нити.
7.11.1. Слябы шириной от 950 до 1290 мм, толщиной от 200 до 250 мм и длиной от 4700 до 6000 мм включительно в зависимости от массы размещают в количестве 5 шт (рисунок 101), либо 6 шт (рисунок 102).

Рисунок 101
1 – упорная балка; 2 – поперечный брусок
При размещении по схеме рисунка 101 для обеспечения устойчивости наклонно уложенных слябов на расстоянии не более 500 мм от упорной балки 1 устанавливают поперечный брусок 2 высотой 160 мм, шириной не менее 160 мм длиной, равной ширине горизонтально установленного сляба.

Рисунок 102
1 – упорная балка; 2 – поперечный брусок
При размещении по схеме рисунка 102 устанавливают поперечный брусок 2 сечением 100х80 мм и длиной на 200 мм меньшей ширины горизонтально установленного сляба.
7.11.2. Слябы шириной от 950 до1370 мм включительно, толщиной от 200 до 250 мм включительно и длиной от 8100 до 11800 мм включительно размещают в количестве 3 шт (рисунок 103).

Рисунок 103
1 – упорная балка; 2 – поперечный брусок
При погрузке слябов шириной от 1300 до 1370 мм включительно для обеспечения устойчивости наклонно установленных слябов на сляб, установленный горизонтально, укладывают бруски 2 сечением 100х80 мм и длиной по месту.
7.11.3. Слябы шириной от 1440 до 1550 мм включительно, толщиной от 200 до 250 мм включительно и длиной от 4700 до 6000 мм включительно размещают в количестве 4 шт (рисунок 104).

Рисунок 104
1 – балка упорная
Первые два сляба размещают горизонтально со смещением к одной из боковых стен платформы, третий и четвертый — наклонно к противоположной боковой стене платформы с опорой на первый два сляба.
7.11.4. Слябы шириной от 1440 до 1550 мм включительно, толщиной от 200 до 250 мм включительно и длиной от 8100 до 11800 мм включительно размещают в количестве 2 шт. (рисунок 105).

Рисунок 105
1 – балка упорная
Первый сляб размещают горизонтально со смещением к одной из боковых стен платформы, второй наклонно к противоположной боковой стене платформы с опорой на первый сляб.
Ширина слябов, размещенных наклонно и горизонтально по рисункам 104 и 105, может быть различной. При этом наклонно размещают слябы равной ширины.