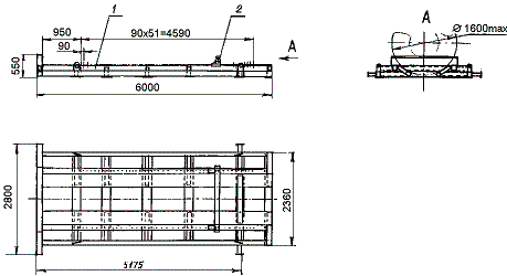
15.1 Рулонная сталь, размещение и крепление не упакованных рулонов стали на платформах и в полувагонах. Перевозка рулонов стали по железной дороге.
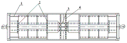
15.1.1 Рулоны массой до 2,5 т включительно полосовой стали и стальной ленты толщиной до 6 мм включительно и шириной до 700 мм включительно размещают по ширине платформы продольными рядами в следующем порядке. Рулоны с наружным диаметром от 600 до 650 мм включительно размещают в четыре ряда, диаметром свыше 650 до 900 мм включительно — в три ряда (рисунок 127), диаметром свыше 900 до 1300 мм включительно — в два ряда. Ряды рулонов размещают симметрично относительно продольной плоскости симметрии платформы.

Рисунок 127
1 – стойка; 2 –упорный брусок; 3 – продольная подкладка;
4 – увязка рядов рулонов; 5 – увязка рулонов, уложенных плашмя
Рулонная сталь — подкладки
В каждом ряду рулоны размещают наклонно или вертикально, а у торцовых бортов платформы размещают горизонтально на две продольные подкладки 3 сечением не менее 100х100 мм и длиной, равной длине платформы. Подкладки располагают одну от другой на расстоянии, равном половине диаметра устанавливаемого на них рулона. Подкладку закрепляют 17 гвоздями длиной не менее 150 мм. Подкладки могут быть составленными по длине из нескольких частей, укладываемых встык. Каждую составную часть подкладки независимо от ее длины закрепляют не менее чем двумя гвоздями.
На продольные подкладки вплотную к обоим торцовым бортам платформы укладывают по одному упорному бруску 2 сечением 50х150 мм и длиной не менее 2000 мм, прикрепляемому к каждой подкладке 3 двумя гвоздями длиной не менее 125 мм.
Оба продольных ряда рулонов, наклонно или вертикально размещенных, а также уложенных у торцового борта платформы горизонтально, скрепляют увязками 4 и 5 из проволоки диаметром 6 мм в две нити, при этом проволоку пропускают через отверстия рулонов. Если между полурядами наклонно размещенных рулонов посередине платформы остается зазор, то на каждую продольную подкладку укладывают вдоль платформы распорные бруски сечением не менее 75х100 мм и длиной, равной величине зазора. Каждый распорный брусок закрепляют к полу платформы тремя гвоздями длиной не менее 125 мм. Во все стоечные скобы устанавливают короткие стойки 1.
Рулонная сталь массой до 2 тонн
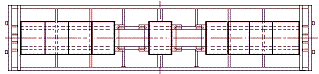
15.1.2 Рулоны массой до 2 т включительно размещают в полувагонах на четырех подкладках 1 сечением не менее 50х100 мм двумя продольными рядами симметрично относительно его продольной. И поперечной плоскостей симметрии в два яруса. В середине полувагона размещают один рулон (рисунок 128). Подкладки могут быть сплошными по всей длине полувагона или составными при этом стык должен находиться на поперечных балках полувагона. Расстояние между подкладками должно быть не менее 700 мм, а от подкладки до боковой стены и хребтовой балки полувагона — не более 400 мм.

Рисунок 128
1 – подкладка; 2 – торцовый щит
Зазоры между рулонами вдоль и поперек вагона не должны превышать 30 мм.
Торцовые двери ограждают щитами 2.
Люковые закидки полувагонов увязывают в соответствии с 1.5 настоящей главы.
15.1.3 Рулоны диаметром до 1400 мм включительно и массой от 3,5 до 4,5 т включительно размещают в полувагоне вертикально на подкладках 2 сечением не менее 50х100 мм в один ярус по высоте, в два-три ряда по ширине симметрично относительно продольной и поперечной плоскостей симметрии полувагона (рисунок 129). При наличии между двумя группами рулонов свободного пространства, посередине полувагона на подкладки размещают распорные бруски 1. Каждый распорный брусок 1 закрепляют к подкладкам 2 не менее чем восемью гвоздями длиной 150 мм. Торцовые двери ограждают щитами 3.

Рисунок 129
1 – распорный брусок; 2 – подкладка; 3 – торцовый щит
Люковые закидки полувагонов увязывают в соответствии с 1.5 настоящей главы.
Рулоны диаметром до 1400 мм
15.1.4 Рулоны диаметром до 1400 мм включительно, массой от 9,0 до 11,0 т включительно размещают по длине полувагона тремя группами, расположенными в торцовых и средней частях кузова (рисунок 130). При перевозке рулонов в полувагонах с разгрузочными люками между поперечными балками размещают выравнивающие подкладки 1 сечением 50х150 мм длиной, равной ширине кузова, опирающиеся на гофры люков, хребтовую балку и угольники нижней обвязки. Выравнивающие подкладки 1 размещают симметрично относительно плоскости симметрии рулона на расстоянии между продольными осями, равном половине наружного диаметра рулона. На выравнивающие подкладки 1 параллельно друг другу вдоль полувагона размещают пять подкладок 2 сечением 50х150 мм.
При этом среднюю подкладку размещают над хребтовой балкой полувагона. Три средних подкладки размещают по всей длине кузова полувагона, а крайние — на длине, превышающей длину групп рулонов на величину, необходимую для установки упорных (ограждающих) брусьев. Средние подкладки должны быть составными по длине из двух частей. Расстояние между продольными осями подкладок от 450 до 500 мм включительно. Подкладки 2 закрепляют к выравнивающим подкладкам 1 гвоздями длиной 100 мм по два гвоздя на каждое соединение. Вплотную к торцовым порожкам полувагона на подкладки 2 размещают упорные бруски 4 сечением не менее 90х90 мм и длиной, равной ширине кузова полувагона, которые закрепляют к подкладкам гвоздями длиной 150 мм по два гвоздя на каждую подкладку. Рулоны размещают, по возможности, вплотную к торцовому упорному бруску 4 и друг к другу, при этом у торцового порожка полувагона размещают один рулон.
Зазоры между рулонами
Зазоры между соседними рулонами, а также между рулоном и торцовым упорным бруском должны быть не более 30 мм. От продольных перемещений группы рулонов закрепляют упорными брусками 4, аналогичными торцовым по размерам и креплению. Упорные бруски подкрепляются продольными брусками 3 сечением не менее 50х150 мм, устанавливаемыми враспор между упорными брусками и прибиваемыми к каждой продольной подкладке гвоздями длиной 120 мм по шесть на каждый брусок. Центральный рулон закрепляется упорными брусками 4 сечением не менее 90х90 мм длиной не менее общей ширины расположения центральных подкладок.

Рисунок 130
1 – выравнивающая подкладка; 2 – подкладка; 3 — продольный брусок; 4 – упорный брусок
Люковые закидки полувагонов увязывают в соответствии с 1.5 настоящей главы.
Рулонная сталь диаметром от 1450 до 1600 мм
15.1.5 Рулоны диаметром от 1450 до 1600 мм включительно, массой от 9,0 до 15,0 т включительно размещают по длине полувагона тремя группами, расположенными в торцевых и средней частях кузова полувагона (рисунок 131).

Рисунок 131
1 – выравнивающая подкладка; 2 – подкладка; 3 — продольный брусок; 4 – упорный брусок
Рулоны размещают по возможности вплотную к торцовому упорному бруску 4, бортам полувагона и друг к другу. Среднюю подкладку 2 размещают над хребтовой балкой полувагона, а остальные – параллельно средней на расстоянии от 300 до 350 мм включительно и от 650 до 700 мм включительно друг от друга. Подкладки 2 могут быть составными по длине (при стыковании их на поперечных балках). Дополнительно упорные бруски 4 центрального рулона также подкрепляются продольными брусками 3 , как и упорные бруски рулонов группы.
Люковые закидки полувагонов увязывают в соответствии с 1.5 настоящей главы.
15.1.6 Размещение и крепление в полувагонах рулонов листовой стали массой от 3,0 до 10,0 т включительно, шириной полосы от 1000 до 1600 мм включительно, наружным диаметром от 860 до 1350 мм включительно может производиться с использованием комплекта из двух металлических рам черт. 005Д-1В АО “Северсталь” (рисунок 132).

Рисунок 132
Металлические рамы
Металлические рамы являются многооборотной возвратной тарой. Указанные рамы изготавливаются из сварных балок коробчатого сечения. На верхние плоскости продольных балок по длине 4200 мм приварены угольники 70х70х5 мм, которые образуют три ложемента (секции) для укладки рулонов на образующую. Масса рамы 1100 кг. Для погрузки рулонов рамы размещают в полувагоне вплотную к торцовым порожкам симметрично относительно продольной плоскости симметрии полувагона. Зазоры более 50 мм между торцами поперечных балок рамы и бортами полувагона должны быть заполнены брусками сечением не менее 50х50 мм длиной не менее 500 мм, прикрепляемыми к раме. В свободное пространство между рамами размещают три продольных распорных бруска сечением не менее 90х90 мм, которые фиксируются двумя поперечными скрепляющими досками сечением 25х100 мм длиной, равной ширине полувагона. Скрепляющие доски закрепляют к распорным брускам гвоздями длиной 120 мм, по два гвоздя в каждое соединение.
Рулоны размещают продольными рядами в ложементы рам симметрично относительно продольной плоскости симметрии полувагона. Но размещение рулонов на рамах должно производиться в соответствии с требованиями к расположению общего центра тяжести груза в полувагоне. Варианты размещения рулонов приведены на рисунке 133. Размещение рулонов должно производиться, начиная от торцовых дверей полувагона. В крайние секции шириной 800 мм допускается размещать рулоны диаметром не менее 960 мм. Рулоны в крайних ячейках центральной секции размещают вплотную к концевым поперечным балкам. Крайние рулоны рядов, а также всей группы на раме должны быть размещены вплотную к концевым поперечным балкам соответствующей секции. Пространство величиной 50 мм и более между торцами рулонов должно быть заполнено брусками сечением (50-100)х100 мм длиной не менее 900 мм, которые укладываются на угольники ложементов.
Исправное техническое состояние металлических рам обеспечивает грузоотправитель.
|
а) ![]() ![]() |
б)
![]() |
|
в) ![]() |
г) ![]() |
|
д) ![]() |
е) ![]() |
|
ж) ![]() |
з) ![]() |
|
и) ![]() |
к) ![]() |
|
л) ![]() |
м) ![]() |
Рисунок 133
1 – рама; 2 – брус сечением 50-100х100 мм;
3 – распорный брусок; 4 – скрепляющая доска
Схема погрузки металлических рам при возврате приведена на рисунке 134.

Рисунок 134
Рулонная сталь от 5,0 до 18,0 т
15.1.7 Размещение и крепление в полувагонах рулонов листовой стали массой от 5,0 до 18,0 т включительно шириной полосы свыше 900 до 1800 мм включительно, наружным диаметром свыше 1100 до 1600 мм включительно может производиться с использованием комплекта из двух металлических рам черт. 14775-1.1СБ АО “Северсталь” (рисунок 135).

Рисунок 135
1 – рама; 2 – передвижная балка
Металлические рамы являются многооборотной возвратной тарой. Более того, указанные рамы изготавливаются из сварных балок коробчатого сечения. Они образуют продольный ложемент для укладки рулонов на образующую. Рамы имеют одну упорную торцовую стенку. В том числе передвижные поперечные балки, предназначенные для закрепления рулонов по торцам. Балки фиксируются на верхней плоскости рамы вертикальными фиксаторами, устанавливаемыми в отверстия рамы. Отверстия расположены с шагом 90 мм. Масса рамы 2200 кг.
Исправное техническое состояние металлических рам обеспечивает грузоотправитель.
Рулонная сталь — погрузка
Для погрузки рулонной стали рамы размещают в полувагоне вплотную к торцовым порожкам полувагона торцами с упорными стенками. В свободное пространство между рамами размещают три продольных распорных бруска сечением не менее 90х90 мм. Они фиксируются двумя поперечными скрепляющими досками сечением 25х100 мм длиной, равной ширине полувагона.
Скрепляющие доски закрепляют к распорным брускам гвоздями длиной 120 мм, по два гвоздя в каждое соединение.
Варианты размещения рулонов приведены на рисунке 136. Рулоны должны быть размещены симметрично относительно поперечной плоскости симметрии полувагона. Размещение рулонов на рамах должно производиться в соответствии с требованиями к расположению общего центра тяжести груза в полувагоне. Погрузка рулонов должна производиться, начиная от торцовых дверей полувагона (вплотную к упорным стенкам рам). Рулоны должны размещаться по возможности вплотную друг к другу. Группы рулонов на каждой раме закрепляют от продольного смещения передвижными балками. Располагаются они по возможности вплотную к торцам рулонов. Зазоры величиной 40 мм и более между рулонами или между рулоном и балкой, образующиеся из-за дискретности расположения балок, должны быть заполнены брусками сечением (40-90)х90 мм. Длиной они не менее 2000 мм, которые укладываются на верхнюю плоскость рамы.
Рулонная сталь — допуски
Допускается с целью максимального использования грузоподъемности полувагона размещать рулоны на концах рам без упорных стенок (рисунок 136 а). В этом случае рулон ограждается дополнительной передвижной балкой. Но пространство между рулонами, размещенными таким образом, должно быть заполнено поперечными брусками. Сечением не менее 90х90 мм длиной 2800 мм. Они должны быть прибиты к продольным распорным брускам, уложенным между рамами.
Допускается также размещение одного рулона в центре полувагона. Но с опорой на обе рамы (рисунок 136 д, е). В этом случае рулон ограждается двумя дополнительными передвижными балками с соблюдением вышеизложенных требований.

Рисунок 136
рама; 2 – передвижная балка; 3 – продольный распорный брусок; 4 – поперечный распорный брусок; 5 – скрепляющая доска
Схема погрузки металлических рам при возврате приведена на рисунке 137.

Рисунок 137
рама в сборе с поперечной балкой; 2- обвязка; 3- продольный распорный брусок;
4- скрепляющая доска; 5- фиксатор; 6- увязка
Рамы размещаются в полувагоне двумя штабелями по длине в четыре яруса по высоте. Вплотную к торцовым порожкам. Передвижные поперечные балки должны быть закреплены на рамах фиксаторами на расстоянии от 700 до 1000 мм включительно от свободного торца. Фиксаторы должны быть закреплены на балке увязками из проволоки диаметром 4 мм в две нити. В каждом штабеле рамы скрепляют двумя обвязками из проволоки диаметром 6 мм в две нити. В свободное пространство между штабелями на пол полувагона размещают три продольных распорных бруска. Сечением не менее 90х90 мм, которые фиксируются двумя поперечными скрепляющими досками сечением 25х100 мм длиной. Длина равна ширине полувагона. Скрепляющие доски закрепляют к распорным брускам гвоздями длиной 120 мм. По два гвоздя в каждое соединение.
Рулонная сталь от 5,0 до 30,0 т
15.1.8 Размещение и крепление в полувагонах рулонов листовой стали массой от 5,0 до 30,0 т включительно. Шириной полосы свыше 1100 до 1800 мм включительно. Наружным диаметром свыше 1300 до 2150 мм включительно. Может производиться с использованием комплекта из двух металлических рам черт. 64295-1.1СБ АО “Северсталь”(рисунок 138).

Рисунок 138
1 – рама; 2 – передвижная упорная балка
Металлические рамы являются многооборотной возвратной тарой. Указанные рамы изготавливаются из сварных балок коробчатого сечения и листового металла. И имеют продольный ложемент для укладки рулонов на образующую. Рамы имеют одну упорную торцовую стенку и передвижные упорные балки, предназначенные для закрепления рулонов по торцам. Балки закрепляются на верхней плоскости рамы штырями-фиксаторами, вставляемыми в отверстия рамы. Отверстия расположены с шагом 80мм. Шаг фиксации упорных балок — 40мм. Масса рамы -3140 кг.
Исправное техническое состояние металлических рам обеспечивает грузоотправитель.
Для погрузки рулонная сталь размещается в полувагоне торцами с упорными стенками вплотную к торцовым порожкам. Зазор между рамами в центре полувагона величиной менее 350 мм заполняют пакетом брусков сечением (50-90)х90 мм. Скрепляют между собой гвоздями длиной 120 мм непосредственно. Либо с помощью накладок из доски сечением 25х100 мм. При этом по крайней мере один брусок должен иметь длину не менее 2700 мм. Остальные — не менее 1900 мм.
Варианты размещения рулонов
Варианты размещения рулонов приведены на рисунке 139. Рулоны должны быть размещены симметрично относительно поперечной плоскости симметрии полувагона. Размещение рулонов на рамах должно производиться в соответствии с требованиями к расположению общего центра тяжести груза в полувагоне. Погрузка рулонов должна производиться начиная от торцовых дверей полувагона (вплотную к упорным стенкам рам). Рулоны следует размещать по возможности вплотную друг к другу. Группы рулонов на каждой раме закрепляют от продольного смещения передвижными упорными балками. Располагаемыми по возможности вплотную к торцам рулонов. Зазоры величиной 40 мм и более между торцами рулонов или между рулоном и балкой должны быть заполнены брусками. Сечением 40х90 мм длиной не менее 2000 мм, которые укладывают на верхнюю плоскость рамы.
При величине зазора более 350 в него устанавливают центральную распорную клетку из брусков. Сечением не менее 90х90 мм (рисунок 139 б, в, г, д ). При этом поперечные бруски должны иметь длину, равную ширине кузова. А продольные — по месту. Расстояние между крайними продольными брусками — 1800 мм. Между рамами и бортами полувагона напротив боковых стоек размещают боковые распорные клетки из брусков. Сечением не менее 90х90 мм. Длина клеток (вдоль полувагона) — не менее 500 мм, ширина — по месту. Между торцами боковых упорных угольников рам и бортами полувагона устанавливают боковые распорные бруски. Сечением не менее 90х90 мм длиной не менее 230 мм. Боковые распорные клетки и бруски должны быть закреплены от продольного смещения.

Рисунок 139
1- рама; 2- передвижная упорная балка; 3- пакет распорных брусков; 4- боковая распорная клетка; 5- боковой распорный брусок; 6- центральная распорная клетка
Допускается с целью максимального использования грузоподъемности полувагона размещение одного рулона в центре полувагона с опорой на обе рамы (рисунок 139 в, г, д). В этом случае рулон ограждается двумя дополнительными передвижными балками с соблюдением вышеизложенных требований.
Схема размещения металлических рам
Схема размещения металлических рам при возврате приведена на рисунке 140. Рамы размещаются в полувагоне двумя штабелями по длине в три яруса по высоте, вплотную к торцовым порожкам. Передвижные поперечные балки должны быть закреплены на рамах штырями-фиксаторами. Штыри-фиксаторы закрепляются на балке увязками из проволоки диаметром 4 мм в две нити. В каждом штабеле рамы скрепляют двумя обвязками из проволоки диаметром 6 мм в две нити. В свободное пространство между штабелями на пол полувагона размещают пакет брусков. Или ставят распорную клетку так же, как и при погрузке рулонов.

Рисунок 140 – Схема погрузки рам черт. 64295-1.1СБ АО «Северсталь» при возврате
1.рама в сборе с поперечной балкой; 2- обвязка; 3- центральная распорная клетка (либо пакет брусков); 4- боковая распорная клетка; 5- увязка; 6- штырь фиксатор
Рулонная сталь от 2,0 до 21 тонны
15.1.9 Размещение и крепление в полувагонах рулонов листовой стали массой от 2,0 до 21 тонны, наружным диаметром от 1000 до 2000 мм включительно, внутренним диаметром 750 мм, высотой от 470 до 1600 мм включительно может осуществляться с использованием многооборотных металлических рам конструкции ОАО «НЛМК», г. Липецк (ТУ 14 – 106 – 586 – 97, черт. 69581–002) (рисунок141).

Рисунок 141
1 – продольная балка; 2 – торцовая упорная балка; 3 – концевая упорная балка;
4 – промежуточная поперечная балка
Металлическая рама представляет собой стальную сварную конструкцию из трубчатого профиля прямоугольного сечения. Рама состоит из четырех продольных балок 1, усиленных приваренной стальной полосой 5, торцовой 2 и концевой 3 упорных балок, промежуточных поперечных балок 4. В верхних полках балок 1, 3 и 4 выполнены отверстия для установки упоров. Масса рамы составляет 1000 кг, длина — 5950 мм, ширина — 2780 мм.
Грузоотправитель отвечает за соответствие металлических рам требованиям технической документации и их исправное техническое состояние.
Упор для закрепления рулонов
Упор (рисунок 142) для закрепления рулонов на раме представляет собой сварную конструкцию, включающую палец 1 и направляющую втулку 2, объединенные пластиной 3 и ребрами 4 и 5. Расстояние между осями пальца и направляющей втулки равно шагу отверстий в балках рамы.

Рисунок 142
1 – палец; 2 – направляющая втулка; 3 – пластина; 4, 5 – ребра
Для погрузки рулонов рамы размещают в полувагоне симметрично относительно его продольной и поперечной плоскостей симметрии торцовыми упорными балками вплотную к торцовым порожкам (за исключением особо описанных случаев). Зазоры более 50 мм между рамами в центре полувагона должны быть заполнены брусками высотой не менее 80 мм длиной не менее 2700 мм.
При использовании полувагона длиной кузова более 12080 мм за исключением особо описанных случаев между многооборотными рамами 1 в середине полувагона должна быть размещена распорная деревянная рама (рисунок 143), состоящая из трех распорных брусков 3 сечением не менее 80 х 90 мм, скрепленных между собой двумя досками 2 сечением не менее 25 х 100 мм. Каждую доску закрепляют к брускам гвоздями длиной не менее 100 мм — по два в каждое соединение.

Рисунок 143
1 – многооборотная рама; 2 — скрепляющая доска; 3 – распорный брусок
Полувагоны с длиной кузова более 12080 мм
С целью обеспечения возможности использования полувагонов с длиной кузова более 12080 мм, а также исключения необходимости увязки рам в полувагонах длиной кузова 12080 мм при длине погрузки на каждой раме менее 3000 мм целесообразно размещать в центре полувагона, с опорой на обе рамы, рулоны суммарной массой не менее 20% общей массы (рисунки 144п, 144т-144ф).
В случаях, когда длина погрузки рулонов на каждой раме составляет менее 3000 мм и отсутствует возможность выполнения вышеприведенного условия, использование полувагонов длиной кузова более 12080 мм не допускается. Так же, при размещении в полувагонах с длиной кузова 12080 мм, в случаях, когда длина погрузки рулонов на каждой раме менее 3000 мм, и отсутствует возможность выполнения вышеприведенного условия, рамы размещают вплотную друг к другу. Концевые упорные балки рам в центре полувагона должны быть соединены двумя увязками из проволоки диаметром 6 мм в две нити либо стальной ленты сечением не менее 1,0х30 мм. Зазоры более 50 мм между рамами и торцовыми порожками полувагона должны быть заполнены брусками высотой не менее 80 мм и длиной не менее 2700 мм.
Размещение рулонов
Размещение рулонов следует производить начиная от торцов полувагона вплотную к торцовым упорным балкам рам. Каждый рулон должен опираться не менее чем на две продольные балки рамы. На каждой раме рулоны размещают по возможности вплотную друг к другу симметрично относительно продольной плоскости симметрии полувагона. По количеству, массе и расположению. Зазоры между соседними рулонами, а также между рулоном и упором должны быть не более 40 мм. Сумма зазоров в последовательном ряду (цепочке) рулонов от торцовой балки до соответствующего упора должна быть не более 250 мм. Допускается такое размещение, при котором отдельные рулоны одной рамы расположены косо симметрично относительно рулонов другой рамы. При условии обеспечения симметричности масс рулонов относительно продольной плоскости симметрии в пределах каждой рамы. Суммарные массы рулонов на каждой раме должны быть равны.
С целью наиболее полного использования грузоподъемности полувагона допускается размещение одиночного рулона в центре кузова с опорой на обе рамы.
При размещении по схемам, приведенным на рисунках 144а, 144б, 144д, 144е, 144и, 144л, 144о-144х, должна быть обеспечена устойчивость рулонов от опрокидывания в продольном направлении. С этой целью рулоны, имеющие отношение высоты к наружному диаметру Н/Dн более 0,85, должны быть объединены увязками из стальной ленты сечением не менее 1 х 30 мм в количестве трех штук или проволоки диаметром 6 мм в две нити, расположенные на расстоянии 100-300 мм от верхнего торца рулона. Примеры установки увязок приведены на рисунках 144о, 144х.
Количество рулонов
Количество рулонов на каждой раме должно определяться исходя из грузоподъемности полувагона с учетом массы рам.
Закрепление рулонов на раме обеспечивают установкой упоров таким образом. Что палец упора помещается в ближайшее к поверхности рулона отверстие. А направляющая втулка – в соседнее отверстие на той же балке. При закреплении в продольном направлении упор должен быть установлен на продольной балке. При креплении в поперечном направлении – на поперечной балке.
Комплекты рулонов диаметром от 1000 до 1300 мм включительно. А также смешанные комплекты, состоящие из рулонов диаметром от 1000 до 1300 мм включительно. И рулонов диаметром от 1000 до 1650 мм включительно. Размещают и закрепляют на рамах в шахматном порядке (рисунки 144а -144з). Рулоны большего диаметра должны располагаться на продольной плоскости симметрии полувагона. При необходимости осуществления неполной загрузки полувагона рулоны диаметром от 1000 до 1300 мм включительно. Могут быть размещены также по схемам рисунки 144о, 144т, 144х. Группы рулонов на обеих рамах должны быть закреплены упорами. Одиночный рулон в центре полувагона (рисунок 144б) закрепляют при возможности установки упоров.
Рулонная сталь диаметром свыше 1300 до 1430 мм
Рулоны диаметром свыше 1300 до 1430 мм включительно размещают и закрепляют в соответствии со схемами рисунки 144и-144к. Двумя продольными рядами вплотную к боковым стенам. Смешанные комплекты, состоящие из рулонов диаметром свыше 1300 до 1430 мм включительно и рулонов других диаметров размещают и закрепляют в соответствии со схемами рисунки 144л-144п. Рулоны диаметром свыше 1300 до 1430 мм включительно размещают двумя продольными рядами вплотную к боковым стенам. Рулоны других диаметров – вплотную к ним на продольной плоскости симметрии полувагона. При необходимости осуществления неполной загрузки полувагона рулоны диаметром свыше 1300 до 1430 мм включительно могут быть размещены также по схемам рисунков 144т, 144х. Группы рулонов на обеих рамах должны быть закреплены упорами; одиночный рулон в центре полувагона (рисунок 144б) закрепляют при возможности установки упоров.
|
а) ![]() |
б) ![]() |
|
в) ![]() |
г) ![]() |
|
д) ![]() |
е)
![]() |
|
ж) ![]() |
з) ![]() |
|
и) ![]() |
к) ![]() |
|
л) ![]() |
м) ![]() |
|
н) ![]() | о) ![]() |
|
п) ![]() |
р) ![]() |
|
с) ![]() |
т) ![]() |
|
у) ![]() |
ф) ![]() |
|
х) ![]() |
|
Рисунок 144
1 – рама; 2 – рулон диаметром от 1000 до 1300 мм включительно; 3 – рулон диаметром от 1000 до 1650 мм включительно; 4 – упор; 5 – упорный брусок; 6 – увязка рам; 7 – распорный брусок; 8 – распорная рама; 9 – увязка рулонов
Рулонная сталь диаметром свыше 1430 до 1650 мм
Комплекты рулонов диаметром свыше 1430 до 1650 мм включительно размещают и закрепляют на рамах в соответствии со схемами рисунки 144р, 144с, а, при необходимости осуществления неполной загрузки полувагона – также по схемам 144т-144х.
Рулоны наружным диаметром до 2000 мм включительно размещают и закрепляют в соответствии со схемами рисунки 144т-144х.
Допускается размещение и крепление пакетов из двух рулонов одинакового диаметра, закрепленных на поддоне с опорой на торец. Ответственность за надежность крепления рулонов и пакетов рулонов к поддонам несет грузоотправитель.
Строповка рам при погрузке и выгрузке производится за проушины одной из продольных балок.
Размещение металлических рам в полувагоне при возврате выполняют в соответствии со схемой, приведенной на рисунке 145. Высота погрузки рам не должна превышать высоты бортов полувагона.

Рисунок 145
Рулонная сталь на платформе
15.1.10 Размещение и крепление рулонов листовой стали массой от 3,5 до 20 т включительно шириной полосы от 1000 до 1800 мм включительно, наружным диаметром от 1000 до 1600 мм включительно может производиться на платформах, оборудованных специальными рамами по проектам 76329 и 76347 ОАО «НЛМК». Рамы закреплены на платформе посредством сварки. Борта платформы демонтированы. Рамы представляют собой сварную конструкцию из стальных профилей и листовой стали. И имеют продольный ложемент для укладки рулонов на образующую. Рамы имеют упорные торцовые стенки и передвижные поперечные балки. Предназначены для закрепления рулонов в продольном направлении. Балки фиксируются на верхней плоскости рамы вертикальными фиксаторами, устанавливаемыми в отверстия балки и рамы. Отверстия расположены с шагом 100 мм.
Варианты размещения рулонов приведены на рисунке 146.
![]() |
б) ![]() |
|
в) ![]() |
г) ![]() |
|
д) ![]() |
е) ![]() |
|
ж) ![]() |
з) ![]() |
Рисунок 146
1 – рулон; 2- рама; 3 – поперечная балка
В зависимости от массы рулонов их размещают в количестве от 3 до 10 шт включительно. Четное число рулонов располагают на раме двумя группами (рисунок 146а-146г); при нечетном числе рулонов один рулон размещают посередине рамы (рисунок 146д-146з).
Общая масса погруженных рулонов с учетом массы оборудования и за вычетом массы демонтированных бортов не должна превышать грузоподъемности платформы.
Допускается размещение в каждой группе рулонов различной массы и размеров при условии соблюдения требований главы 1 к расположению общего центра тяжести груза.
Рулонная сталь вплотную друг к другу
Размещение рулонов должно производиться, начиная от торцовых частей платформы (вплотную к упорным стенкам рамы). Рулоны большей массы размещают в торцовых частях платформы. Рулоны должны размещаться по возможности вплотную друг к другу. Группы рулонов 1 на раме 2 закрепляют от продольного смещения передвижными балками 3, располагаемыми по возможности вплотную к торцам рулонов. Центральный рулон закрепляют с обеих сторон двумя дополнительными балками. Фиксаторы передвижных балок должны быть зашплинтованы проволокой диаметром не менее 4 мм в один оборот с закруткой концов проволоки в три оборота. Длина скрученных концов проволоки должна быть не более 100 мм. Зазоры между балками и рулонами должны быть заполнены наборами досок длиной, равной длине балки.Доски, предохраняющие торцы рулонов от повреждений, закрепляют к вертикальной плоскости передвижных поперечных балок гвоздями.
При невозможности размещения для крепления рулонов в продольном направлении двух упорных балок между группами рулонов разрешается размещать в центре одну балку. Или производить погрузку по всей длине платформы без применения упорных балок. При этом имеющиеся зазоры между рулонами выбирают с помощью деревянных брусков.
Зазоры величиной 40 мм и более между рулонами или между рулоном и балкой, образующиеся из-за дискретности расположения балок. Должны быть заполнены брусками сечением (20-80)х100 мм, которые укладываются на верхнюю плоскость ложементов рамы.
Исправное техническое состояние рам обеспечивает грузоотправитель.
Рулонная сталь на поддонах
15.2 Размещение и крепление упакованных рулонов на поддонах
15.2.1 Рулоны массой от 3,0 до 3,5 т включительно, диаметром от 780 до 1150 мм включительно, шириной полосы не более 1000 мм на деревянных поддонах размером 800х800 мм и 1000х1000 мм размещают в полувагонах. Каждый рулон защищен кожухом от атмосферных осадков и закреплен к поддону ленточной увязкой (рисунок 147).

Рисунок 147
1 – сталь в рулоне; 2 – кожух; 3 – поддон; 4 – ленточная увязка
Поддоны изготавливают из деревянных брусков сечением 80х100 мм, которые скрепляют между собой гвоздями длиной 150 мм – по два в каждый стык. Дополнительно бруски скрепляют пластинами и фигурными уголками из листа толщиной 2 мм.
Полозы поддонов
Рулоны размещают, начиная от торцов полувагона с соблюдением следующих требований. Полозы поддонов, размещаемых рядами, должны быть ориентированы вдоль полувагона. Зазоры между соседними рулонами (или их поддонами) должны быть не более 80 мм. Каждую группу рулонов от продольного смещения закрепляют усиленными щитами. В случаях опирания рулона на крышку люка всей площадью поддона, рулон должен быть установлен на две поперечные подкладки сечением 40х80 м и длиной 1400 мм, опирающиеся на хребтовую балку и угольник нижней обвязки полувагона. Подкладки должны быть расположены на расстоянии от 100 до 150 мм включительно от края поддона. На поперечную балку, если расстояние от края поддона до балки не превышает 300 мм, под рулон на крышку люка должна быть уложена одна подкладка. Если расстояние составляет более 300 мм, допускается подкладку не устанавливать. При погрузке рулонов в глуходонные полувагоны подкладки не устанавливают.
Размещение и крепление рулонов массой до 3,5 т, производится с использованием металлических щитов (рисунок 148), выполненных по проекту ОАО «НЛМК» черт. 11.71.98 и 11.71-99-01.
а)

б)

Рисунок 148
а — щит металлический; б – щит металлический усиленный
1 – швеллер №12 длиной 2800 мм; 2 – швеллер №12 длиной 800 мм;
3 – брусок сечением 80х100 мм и длиной 2800 мм
15.2.2 Рулоны, массой до 3,5 т включительно на поддонах размерами 1000х1000 мм, размещают и закрепляют в количестве 20 шт. (рисунок 149). Вплотную к торцовым металлическим щитам 1 устанавливают два рулона с раздвижкой их к боковым стенам полувагона.
Рулоны массой до 3,5

Рисунок 149
1 – щит металлический; 2 – щит металлический усиленный; 3, 7 –распорный брусок;
4 – планка соединительная; 5 – растяжка; 6 – подкладка
Между ними размещают один рулон. Поворачивая его так, чтобы диагональ поддона была параллельна продольной плоскости симметрии полувагона. Чередуя, таким образом, размещают с каждой стороны полувагона 8 рулонов. Последние два рулона каждой группы устанавливают вплотную друг к другу в середине полувагона.
Каждую группу из 10 рулонов закрепляют от продольного смещения усиленными металлическими щитами 2. Между которыми в специальные направляющие на щитах устанавливают распорные бруски 7 сечением 80х100 мм. И закрепляют их гвоздями длиной не менее 80 мм через отверстия в направляющих. Всего устанавливают 4 бруска по два напротив каждой поперечной балки щита. Дополнительно щиты фиксируют растяжками 5 диаметром 6 мм в четыре нити. За средние увязочные устройства полувагона.
От продольного смещения рулоны каждой группы, расположенные у боковых стен полувагона, раскрепляют между собой распорными брусками 3 сечением 80х100 и длиной по месту,предварительно прикрепленной к планке 4 сечением 25х100 мм двумя гвоздями. Концы планки закрепляют к поддонам каждый двумя гвоздями.
15.2.3 Рулоны, массой до 3,0 т включительно на поддонах размерами 800х800 мм, размещают в полувагоне в количестве 22 (рисунок 150) и 24 (рисунок 151) штук.

Рисунок 150
1 – щит металлический; 2 – щит металлический усиленный; 3 – растяжка

Рисунок 151
1 – щит металлический; 2 – щит металлический усиленный; 3 – растяжка
После размещения первых пяти рулонов (три рулона — в один ряд поперек полувагона и два рулона с поворотом поддонов). Их ограждают металлическим щитом 1. Щит фиксируют растяжками 3 из проволоки диаметром 6 мм в шесть нитей за средние и нижние увязочные устройства полувагона.
После погрузки оставшихся рулонов устанавливают усиленные металлические щиты 2 для удержания группы рулонов от продольного смещения. Закрепляется каждый из которых проволочными растяжками диаметром 6 мм в шесть нитей. За средние и нижние увязочные устройства полувагона.










































