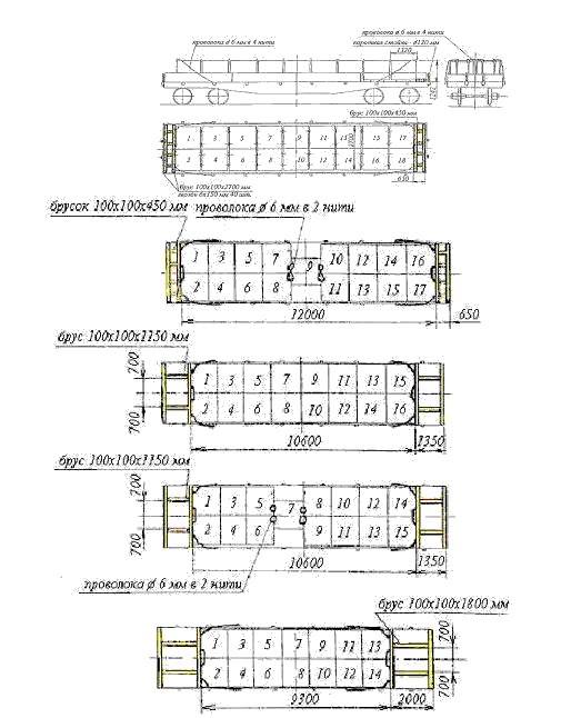
4.2.8.1 На универсальных платформах груженые специализированные контейнеры размещают в количестве от 14 до 18 штук (рисунок 50) в зависимости от суммарной массы брутто контейнеров.

Рисунок 50 – Схемы размещения и крепления контейнеров
До погрузки вплотную к торцовым бортам платформы укладывают деревянные бруски сечением не менее 100 х 100 мм длиной 2700 мм. Каждый брусок прибивают к полу 20 гвоздями диаметром 6 мм длиной 150 мм. В торцовые стоечные скобы устанавливают короткие деревянные стойки.
Погрузку производят симметрично относительно продольной и поперечной плоскостей симметрии платформы. В распор между группой контейнеров и упорным брусом у торцовых бортов монтируют распорную раму из упорного и распорных брусьев. Каждый брус прибивают к полу вагона не менее, чем четырьмя гвоздями диаметром 6 мм длиной 150 мм. Общее количество гвоздей для крепления распорных рам зависит от суммарной массы брутто погруженных на платформу контейнеров (таблица 4).
Таблица 4
|
Суммарная масса брутто контейнеров на платформе, т |
72 |
70 |
65 |
60 |
55 |
50 |
45 |
40 |
35 |
30 |
|
Количество гвоздей для крепления распорной рамы, шт |
68 |
66 |
60 |
55 |
49 |
44 |
38 |
33 |
27 |
22 |
Контейнеры, стоящие у торцовых бортов, соединяют между собой увязкой из проволоки диаметром 5 мм в три нити и дополнительно закрепляют за грузовые серьги растяжками из проволоки диаметром в 6 мм в шесть нитей.
4.2.8.2 В полувагоне груженые специализированные контейнеры размещают в количестве 16 штук (рисунок 51).

Рисунок 51
Перед погрузкой у порожка торцевых дверей на пол полувагона устанавливают на ребро упорный брусок сечением не менее 60 х 100 мм, длиной 2850 мм.
Размещение контейнеров начинают от торцовых дверей в два ряда по ширине полувагона. Зазор между группами контейнеров в середине полувагона заполняют распорной рамой из брусьев сечением не менее 100 х 100 мм. Упорные и распорные брусья рам соединяют строительными скобами диаметром 8 мм, длиной 200 мм.
4.2.8.3 Порожние специализированные контейнеры перевозят в полувагонах в сложенном виде. Грузоотправитель должен надежно закрепить элементы контейнера во избежание их развала при перевозке.
Контейнеры устанавливают вертикально в два ряда по ширине и в два яруса по высоте полувагона (рисунок 52) в количестве 96 (СК-3-1,5) или 108 (КШМК-5) штук. Контейнеры второго яруса, расположенные у торцовых дверей полувагона, закрепляют обвязкой 1 из проволоки диаметром 6 мм в две нити за верхние увязочные устройства полувагона. Обвязки фиксируют на корпусе контейнеров, пропуская их через запирающие устройства контейнера.

Рисунок 52
1 – обвязка
4.3 Специализированный контейнер ПКС-2,85 для листового стекла.
Контейнер (рисунок 53) имеет жесткий металлический каркас 1 с деревянной обшивкой. Внутри контейнера, установлена деревянная опора пирамидальной формы, к которой с двух сторон наклонно устанавливается листовое стекло. По бокам контейнера имеются откидные стенки 5, для загрузки и выгрузки стекла. Строповку контейнера и его крепление в вагоне осуществляют за четыре кольца 6, расположенных по углам.
Масса брутто спецконтейнера – 2850 кг, масса тары – 450 кг.
Конструкция контейнера разработана стеклозаводом «Пролетарий», г. Лисичанск.

Рисунок 53 – спецконтейнер ПКС — 2,85
1 – каркас; 2 – днище; 3 – отверстие для вил погрузчика; 4 – крыша; 5 – откидная стенка; 6 – строповочные кольца
4.3.1 На универсальной платформе груженые специализированные контейнеры устанавливают в один ярус в количестве 21 штуки (рисунок 54).

Рисунок 54
1 – упорный брусок; 2 – растяжка; 3 – увязка; 4 – стойка
Перед погрузкой контейнеров к одному торцовому борту платформы укладывают два упорных бруска 1 сечением не менее 100 х 100 мм длиной 2700 мм. Каждый брусок прибивают к полу 30 гвоздями диаметром 6 мм длиной 200 мм. Торцовые и крайние секции боковых бортов платформы должны быть подкреплены короткими стойками 4.
Контейнеры размещают вплотную к брусу и друг к другу. Зазор между контейнерами и противоположным торцовым бортом заполняют брусками, аналогичными брускам 1; бруски прибивают к полу гвоздями диаметром 6 длиной 200 мм общим количеством не менее 30 штук.
Контейнеры, расположенные у торцовых бортов, увязывают между собой за строповочные кольца увязками 3 из проволоки диаметром 6 мм в две нити. Контейнеры, расположенные в углах платформы, дополнительно закрепляют растяжками 2 из проволоки диаметром 6 мм в четыре нити.
4.3.2 На универсальных платформах порожние спецализированные контейнеры размещают в один ярус в количестве 21 штуки по рисунку 54 без дополнительного крепления торцовых и крайних секций боковых бортов и установки растяжек угловых контейнеров. Увязку спецконтейнеров, стоящих у торцовых бортов, производят проволокой диаметром 6 мм в две нити.
4.3.3 В полувагоне груженые специализированные контейнеры размещают в один ярус в количестве 18 штук (рисунок 55).

Рисунок 55
1 – упорный брусок; 2 – доска упорная ; 3 – брусок распорный; 4 – скрепляющая доска
Перед погрузкой к торцовым порожкам укладывают упорные бруски 1 сечением не менее 60 х 100 мм длиной 2850 мм.
Контейнеры размещают, начиная от торцовых дверей, двумя группами в три ряда по ширине вагона. Зазор между группами контейнеров в середине вагона заполняют распорной рамой из распорных брусьев 3 сечением не менее 100 х 100, упорных досок 2 сечением не менее 40 х 150 мм длиной 2850 мм и скрепляющих досок 4 сечением не менее 25 х 150 мм длиной 2850 мм. Скрепляющие доски на распорных брусьях закрепляют гвоздями диаметром 5 мм длиной 120 мм по два в каждое соединение.
диаметром 6 мм в две нити.
4.3.4 В полувагонах порожние специализированные контейнеры размещают в один ярус в количестве 19 штук без укладки брусьев у торцовых дверей и распорной рамы в середине полувагона. Контейнеры устанавливают вплотную к торцовым дверям. В середине полувагона дополнительно устанавливают один контейнер поперек вагона.
4.4 Специализированные контейнеры-цистерны IМО1, IМО5
Контейнеры-цистерны (рисунок 56) предназначены для перевозки гептила и амила. Параметры онтейнеров должны соответствовать стандартам ISO на крупнотоннажные контейнеры массой брутто 20-24 тоны. Внутри рамы контейнера-цистерны смонтирована емкость (цистерна). Изготовитель фирма «Arbel» (Франция). Контейнеры-цистерны изготавливают в соответствии со схемой сертификации контейнеров Регистра Ллойда и Международной конвенцией по безопасным контейнерам.
Масса брутто контейнера-цистерны — 30480 кг, масса тары: для типа IМ0I – 5600 кг, для типа IM05 – 6300 кг. Максимальное рабочее давление – 6,12 кг/см2.

Рисунок 56 –Спецконтейнер-цистерна типа 1М01 (или 1М05)
Размещение и крепление груженых и порожних контейнеров-цистерн (рисунок 57) производится на специализированных платформах для перевозки крупнотоннажных контейнеров и колесной техники модели 13-9004 исполнения 10 с металлическим полом по два контейнера-цистерны на платформе в соответствии с общими требованиями раздела 3 настоящей главы.

Рисунок 57
При этом:
-
на платформе должны быть размещены два груженых либо два порожних контейнера-цистерны;
-
контейнеры-цистерны должны быть установлены на крайние упоры платформы. Каждый контейнер-цистерну крепят четырьмя растяжками из проволоки диаметром 6 мм в четыре нити, закрепляемыми за верхние фитинги и увязочные скобы платформы.
4.5 Специализированный контейнер-цистерна ТКМГ-25 предназначен для перевозки и временного хранения сжиженных углеводородных газов, относящихся ко 2-му классу опасности в соответствии с ГОСТ 19433.
Эти контейнеры-цистерны соответствуют универсальным контейнерам типоразмера 1СС и имеют следующие технические характеристики:
Максимальная масса брутто, кг 25000
Масса тары контейнера, кг 8600
Максимальная грузоподъемность, кг 16400
Вместимость цистерны контейнера, м 24,5
Температурный диапазон эксплуатации, °С -50…+50
Контейнер-цистерна (рисунок 58) представляет собой цистерну 1 с экраном теневой защиты 2, закрепленную сваркой с торцовыми рамами 3 и 4, соединенными опорными обечайками 5. Контейнер-цистерна оборудован наливной (сливной) и предохранительной арматурой, размещенной в арматурном отсеке 6.

Рисунок 58
1 – цистерна; 2- экран теневой защиты; 3,4 – торцовые рамы; 5- опорная обечайка; 6- арматурный отсек; 7- фитинг; 8- площадка обслуживания; 9- нижняя опора
Торцовые рамы представляют собой силовые сварные конструкции, выполненные из балок коробчатого сечения, по углам которых закреплены типовые фитинги 7, обеспечивающие подъем контейнера-цистерны, крепление его на транспортном средстве и при штабелировании аналогично универсальным контейнерам соответствующего типоразмера. В верхней части контейнера-цистерны имеется площадка обслуживания 8, в нижней — опорные площадки 9 для размещения на шасси автомобиля.
Маркировка контейнера-цистерны выполнена в соответствии с требованиями Регистра и стандарта ISО 6346:1995. Маркировочные знаки и надписи нанесены на боковой поверхности и днище контейнера-цистерны, а также на пластине для крепления табличек, приваренной на задней торцовой раме. Дополнительно на боковой поверхности контейнера-цистерны наносится краской дата последнего освидетельствования.
Контейнеры-цистерны размещают на специализированных платформах с длиной базы:
-
9294 и 9720 мм — по два груженых или два порожних;
-
13900, 14720 и 14400 мм — по два или три груженых в зависимости от массы груза и грузоподъемности платформы, либо три порожних.
На одной платформе должны быть погружены только груженые или только порожние контейнеры-цистерны.
При погрузке двух груженых контейнеров-цистерн их устанавливают на концевые упоры платформы.
4.6 Специализированные контейнеры СК-3-30 «Д» (рисунок 59), принадлежащие РАО «Норильский никель», с внутренним объемом кузова 14,4 м3, массой брутто 30,48 тонн, соответствующие типоразмеру 1Д, изготавливаемые по ТУ 24.05.469-82 и ТУ 24.05.969-94, предназначены для перевозки слитков файнштейна.

Рисунок 59
Контейнер имеет смотровой люк на задней стенке с запорами, угловые фитинги по ГОСТ 20527-82, одну пару вилочных проемов, металлический пол, обшивку торцовых и боковых стенок из плоских панелей, скобы и две лестницы, расположенные на торцовых стенках по диагонали, вентиляционные устройства. Контейнер может иметь съемный тент или съемную часть крыши, которые оборудуются запорными устройствами, позволяющими с уровня земли проверять надежность их закрепления на контейнере. На полу контейнера имеется шесть неподвижных упоров для жесткого крепления слитка файнштейна в спецконтейнере.
На специализированных платформах размещают по два груженых спецконтейнера СК-3-30″Д»: на платформах с длиной базы 9720 мм контейнеры располагают по торцам платформ (над тележками) смотровыми люками наружу, а на платформах с длиной базы 14720, 14400 и 13900 мм контейнеры размещают со смещением на один фитинговый упор к середине платформы смотровыми люками к середине.
Порожние контейнеры размещают на платформах с длиной базы 9720 мм в количестве 4 шт., с длиной базы 14720, 14400 и 13900 мм в количестве 6 шт.
На одной платформе должны быть погружены только груженые или только порожние контейнеры.
4.7 Специализированные контейнеры СК-3ВМ с внутренним объемом кузова 14,8 м3, массой брутто 10,16 т, а также спецконтейнеры 1Д, 1ДД грузоподъемностью от 10 до 12 тонн, имеющие один типоразмер, предназначены для перевозки взрывчатых материалов в соответствующей таре или упаковке, а также различных штучных грузов без транспортной тары.
Контейнер СК-3ВМ имеет двустворчатую дверь с эластичным уплотнением и запорными устройствами на задней торцевой стенке, угловые фитинги по ГОСТ 20527 одну пару вилочных проемов в основании по ГОСТ 18477, вентиляционные устройства с заградительной системой.
Контейнеры размещают на специализированных платформах с длиной базы:
-
9294 и 9720 мм – по четыре штуки, торцовыми дверями друг к другу;
-
14720 и 14400 мм – по шесть штук, торцовыми дверями внутрь вагона;
-
13900 мм – по четыре штуки, торцовыми дверями внутрь вагона.
На одной платформе должны быть погружены только груженые или только порожние контейнеры.
В полувагонах размещают по четыре контейнера дверями внутрь.
Погруженные в один вагон контейнеры могут иметь одинаковую или различную высоту.
4.8 Специализированные контейнеры типов 01636В2-00 и 001637В2-00
Контейнеры предназначены для перевозки специзделий, имеют трапецеидальную форму, герметичны.
Характеристика контейнеров приведена в таблице 5.
Таблица 5
|
Характеристика контейнеров |
Тип контейнеров |
|
|
|
01636В2-00 |
001637В2-00 |
|
Длина, мм |
18550 |
22360 |
|
Ширина, мм |
800 |
800 |
|
Высота, мм |
886 |
886 |
|
Масса, кг |
5070 |
5500 |
4.8.1 Контейнеры размещают на сцепе из двух универсальных платформ (рисунок 60) с использованием устройства, состоящего из двух турникетов типа ЦНИИ МПС рабочий проект N 1943 СКБ Главмостостроя Министерства транспортного строительства СССР (Адрес: СКБ-129278, г. Москва, ул. Павла Корчагина, д. 2) , со специальными приспособлениями (проект № ПГС506.00.00.00.000 КБ п/я Р-6478 г. Новосибирск).
Рисунок 60
Турникеты устанавливают продольными упорами нижних рам в пятые от торцов сцепа пары стоечных скоб вплотную к их стенкам, обращенным к середине сцепа, при этом поперечные упоры должны находиться с внешней стороны армирующих уголков пола платформы.
Приспособление для крепления контейнеров состоит из четырех рамных балок оборудованных винтовыми механизмами и крюками, двух коротких и четырех соединительных балок, восьми цепей.
Ответственным за техническое состояние турникетов и специальных приспособлений является грузоотправитель.
4.8.2 Перед погрузкой контейнеров с каждого турникета должны быть сняты и размещены в карманах между стойками фиксирующие пальцы верхней рамы. Верхнюю и нижнюю рамы каждого турникета с обеих сторон закрепляют фиксаторами – деревянными стойками поперечным сечением 50х70 мм, которые вставляют через скобы верхней рамы в поперечные упоры нижних рам. Стойки служат для того, чтобы во время погрузки контейнеров верхние рамы турникетов относительно нижних были расположены симметрично и не смещались. После окончания погрузки фиксаторы должны быть сняты.
4.8.3 На сцепе платформ размещают восемь контейнеров одного либо обоих типов в любом сочетании.
Контейнеры размещают в три яруса по высоте. При комбинированной погрузке в нижнем ярусе размещают спецконтейнеры большей длины, в верхнем – меньшей длины.
Порядок погрузки контейнеров типа 001636В2-00 и типа 001637В2-00 следующий (рисунок 60 и 61).

Рисунок 61
На штыри верхних рам турникетов устанавливают три контейнера. На них размещают две рамные балки 1 второго яруса так, чтобы каждая балка своей средней частью опустилась на штыри 2, расположенные на опорных поверхностях между стойками 4 верхних рам. Между верхней плоскостью опорной поверхности и нижней плоскостью рамной балки 1 должен быть зазор. На контейнеры нижнего яруса укладывают четыре рамные балки 10, соединяя каждую двумя шпильками 9, четырьмя гайками 11 и четырьмя контргайками 12 с верхними рамами турникетов.На рамные балки 1 грузят второй ярус, состоящий из трех спецконтейнеров, размещая их так, чтобы штыри 2, расположенные на рамных балках 1, вошли в отверстия на днищах контейнеров. На три контейнера второго яруса устанавливают две рамные балки 3 так, чтобы средняя часть балок находилась между стойками 4 верхних рам.
На штыри 2 рамных балок 4 устанавливают два контейнера верхнего (третий) яруса, на которые размещают две рамные балки 11, соединив их винтовыми механизмами 6 с рамными балками 3.
На крюки балок 3 навешивают восемь цепей. Нижние концы цепей соединяют с винтовыми механизмами 6 верхних рам. После размещения и крепления контейнеров нижние рамы каждого турникета закрепляют четырьмя растяжками 12 из проволоки диаметром 6 мм в восемь нитей.
Растяжки 12 крепят за скобы нижних рам турникетов и платформ.
4.8.4 Подготовку сцепа c оборудованием для перевозки контейнеров к отправке в порожнем состоянии производят в следующем порядке (рисунок 62).

Рисунок 62
Турникеты устанавливают в соответствии с требованиями подпункта 4.2.11.2. настоящей главы.
На центральный штырь 8 верхней рамы турникета укладывают рамную балку 2.
По обеим сторонам рамной балки 2 вплотную к ней устанавливают две соединительные балки 5 и за отверстия в них закрепляют каждую двумя увязками 12 из проволоки диаметром 6 мм в две нити к рамной балке 2.
На штыри 9 рамной балки 2 размещают рамную балку 3, на штыри 10 рамной балки 3, предварительно откинув винтовые механизмы, устанавливают короткую балку 4.
Винтовые механизмы рамной балки 3 опускают и укладывают на короткую балку 4 и связывают между собой увязкой 12 из проволоки диаметром 6 мм в две нити.
Четыре шпильки 6 с навинченными гайками и контргайками укладывают на ребра рамной балки 3 и привязывают к ним двумя увязками 14 из проволоки диаметром 6 мм в одну нить.
Четыре цепи 13 укладывают между ребрами рамных балок 2, 3 и крепят к ним двумя увязками 14 из проволоки диаметром 6 мм в одну нить. Винтовые механизмы турникета опускают на вертикальные стойки верхней рамы 1 и связывают между собой каждую пару механизмов одной увязкой 12 из проволоки диаметром 6 мм в две нити.
Комплект балок 2, 3, 4, 5 закрепляют от поворота относительно вертикальной оси турникета двумя увязками 11 из проволоки диаметром 6 мм в четыре нити за отверстия в верхней раме турникета и за ребра балок.
Верхнюю раму турникета 22 с размещенными на ней балками, цепями и шпильками от продольного сдвига закрепляют двумя пальцами 21. Для этого отверстия диаметром 40 мм в верхней раме 22 совмещают с отверстиями в средней раме 23, после чего в отверстия вставляют пальцы 21 и закрепляют каждый палец одной увязкой 14 из проволоки диаметром 6 мм в одну нить за скобы.
Верхнюю раму турникета 22 закрепляют четырьмя откидными фиксаторами-стяжками 20 к нижней раме 16. Фиксаторы-стяжки крепят гайками и контргайками.
Турникет с размещенными на ней приспособлениями удерживается продольными упорами 7 и четырьмя растяжками 18 из проволоки диаметром 6 мм в восемь нитей. Растяжки 18 крепят за стоечные скобы платформы и за петли 17 нижней рамы 16 турникета.
От смещения в поперечном направлении турникет удерживается поперечными упорами 15.
После окончания погрузки и крепления контейнеров либо подготовки сторон сцепа и секции продольных бортов, расположенные над тележками, должны быть закрыты и закреплены, открытые секции продольных бортов – закреплены в соответствии с требованиями главы 1 настоящих ТУ.
4.9 Специализированные мягкие контейнеры
4.9.1 Контейнеры МК-П (рисунок 63) и МК-Л (рисунок 64) типоразмеров от 0,5 до 3,0, предназначены для перевозки слабослёживающихся и неслёживающихся сыпучих грузов; контейнеры МК-П типоразмеров 0,1 и 0,25 – для перевозки штучных грузов, упакованных в полиэтиленовые или бумажные мешки. Контейнеры изготавливаются из резинотканевых и полимерных материалов и имеют несущие проушины с металлическими кольцами либо со съемными штангами (контейнеры МК-П) либо грузовые элементы в виде металлических лент с грузовыми серьгами (контейнеры МК-Л).

Рисунок 63 – Специализированный контейнер МК – П
1 – корпус; 2 – проушина; 3 – загрузочный рукав; 4 – разгрузочный рукав; 5 – клапан

Рисунок 64 – Специализированный контейнер МК –Л
1 – корпус; 2 – грузовая лента; 3 – серьга; 4 – загрузочный рукав; 5 – разгрузочный рукав; 6 – клапан
Технические характеристики контейнеров типов МК-П и МК-Л приведены в таблице 6.
Таблица 6
Типоразмер |
Масса брутто, кг, не более |
Собственная масса контейнера, кг, не более |
Вместимость, м3 |
Габаритные размеры в загруженном состоянии, мм не более |
||
|
|
|
|
|
длина |
ширина |
высота |
|
МК-01П |
500 |
10 |
0,11 × 0,01 . |
480 |
330 |
750 |
|
МК-0,25П |
1000 |
18 |
0,27 × 0.01 |
750 |
480 |
850 |
|
МК-0,5П(Л) |
1500 |
20 |
0,51 × 0,10 |
940 |
940 |
950 |
|
МК-0,7П |
1500 |
25 |
0,67 × 0,15 |
940 |
940 |
1250 |
|
МК-1,0П(Л) |
2000 |
35 |
0,89 × 0.15 |
980 |
980 |
1250 |
|
МК-1,5П(Л) |
2000 |
50 |
1,72 × 0,15 |
1450 |
1450 |
1250 |
|
МК-2,0П(Л) |
4000 |
80 |
2,20 × 0.20 |
1450 |
1450 |
1650 |
|
МК-2,5П(Л) |
4000 |
85 |
2,60 × 0,20 |
1400 |
1400 |
2000 |
|
МК-З,0П(Л) |
4000 |
95 |
3,35 × 0,25 |
1450 |
1450 |
2500 |
Гружёные контейнеры размещают в полувагонах одним штабелем, который формируют по всей площади пола полувагона одним либо двумя ярусами (рисунки 65, 66).
|
|
|
|
Рисунок 65 Размещение контейнеров в два ряда по ширине полувагона |
Рисунок 66 Размещение контейнеров в три ряда по ширине полувагона |
Формирование штабеля начинают от дверей полувагона. Спецконтейнеры в штабеле располагают вплотную друг к другу. В случаях, когда во втором ярусе спецконтейнеры не могут заполнить всю длину кузова, их размещают двумя одинаковыми по количеству и расположению спецконтейнеров группами вплотную к дверям. Превышение общей высоты штабеля над верхней обвязкой полувагона допускается не более 400 мм, но не более 1/3 высоты контейнеров, размещенных в верхнем ярусе. Каждая пара крайних контейнеров, расположенных у торцевых дверей, вдоль вагона в верхнем ярусе должна быть связана между собой проволокой или другим видом материала, рассчитанным на усилие не менее 300 кг.
4.9.2 Контейнеры МКР-М (рисунок 65) и МКР-С (рисунок 66) предназначены для перевозки и кратковременного хранения сыпучих продуктов.
|
|
|
|
Рисунок 67 Контейнер МКР-М 1 – корпус, 2 – грузовой канат |
Рисунок 68 Контейнер МКР – С 1 – корпус, 2 – съемные грузовые ленты |
Они представляют собой емкость в виде мешка с квадратным днищем. контейнер МКР-М изготовливается из полиолефиновой ткани, ламинированной плёнкой, контейнер МКР-С – из нетканого материала на основе синтетических волокон, ламинированного плёнкой или с внутренним вкладышем из плёнки. Полезный объём контейнеров – 1м3,масса брутто – 1 т, диаметр загруженного контейнера не более 1000 мм; высота – 1300 мм.
Грузоподъемным элементом контейнера МКР – М является канат, который стягивает горловину и завязывает её специальным узлом, контейнера МКР –.С – съёмные грузовые резинокордновые ленты, образующие сетку.
При разгрузке днище контейнеров разрезают.
Контейнеры размещают в полувагоне в порядке, аналогичном размещению контейнеров МК-П и МК-Л (4.2.12.1) (рисунок 67)

Рисунок 69 – Размещение в полувагоне контейнеров
МКР-М и МКР-С
В зависимости от внутренней длины полувагона максимальное возможное количество контейнеров в полувагоне составляет 78 штук либо 67 штук. Допускается в поперечных рядах верхнего яруса, за исключением рядов, примыкающих к дверям, размещать по два контейнера с чередованием полных и неполных рядов.
4.9.3 Специализированные мягкие контейнеры МК-14-10 (ТУ 2297-001-18858918-00) изготавливаются в химически стойком и влагозащитном исполнениях и состоят из емкости 1, силового каркаса состоящего из продольных и поперечных лент 2 и дна 4 (рисунок 70).

Рисунок 70
1 – емкость из ткани; 2 – силовой каркас ленты; 3 – грузоподъемные коуши; 4 – дно
Диаметр контейнера – 2400+50 мм; высота – не более 2800 мм;
Грузоподъемность контейнера – 14 т, масса тары – не более 0,07 т; полезный объем – 12 м3.
Контейнеры размещают в полувагоне в количестве 5 штук непосредственно на пол, симметрично относительно продольной и поперечной плоскостей симметрии полувагона (рисунок 71). Погрузку производят от торцовых дверей к середине полувагона, причем между крайними контейнерами и торцевыми стенками (дверями) зазор не должен превышать 10 см с каждой стороны, между остальными контейнерами зазоры должны быть равными. После установки в полувагон коуши 3 контейнера вручную стягивают между собой к центру контейнера.

Рисунок 71



